Жироотделители ACO LipuJet-P-R
Модели марки LipuJet-P-R – группа жироотделителей со сборными корпусами из пластика (Р), круглой в плане формы (R). Количество сборных частей корпуса напрямую зависит от размера жироотделителя и, соответственно, его пропускной способности.
Номенклатура моделей включает в себя несколько уровней комплектации различным дополнительным оборудованием, позволяющим комфортно, и с соблюдением гигиены, эксплуатировать жироотделители внутри зданий;
К числу дополнительного оборудования относятся:
- устройство внутренней промывки под давлением;
- насос откачки содержимого жироотделителя;
- встроенная напорная труба для откачки жироотделителя и .т.д
Выбор модели и уровня ее комплектации зависит от параметров:
- местоположение жироотделителя внутри здания;
- расход производственных стоков, поступающих в жироотделитель;
- высота подъема стоков при откачке жироотделителя и другие.
Lipujet-P-RB
- Базовая модель;
- Составной корпус из полиэтилена высокой плотности;
- Патрубки входа и выхода обеспечивают соединение с системой канализации;
- При комплектации шаровым краном для наполнения отделителя водой, предусмотрен «разрыв струи»;
- Крышки инспекционных люков герметично закрываются в верхней части корпуса;
- Откачка и промывка проводится через люки в верхней части корпуса;
- На корпусе предусмотрен патрубок DN100 для подсоединения вентиляционной трубы.

Артикулы
| Пропуск.способность (расход) л/с. | Диаметр патрубков входа выхода | Объем осадка л. | Объем жира л. | Общий объем | Вес кг пустой | Вес кг полный | Тяжелая часть | Артикул |
| NS 2 | DN 100 | 290 | 120 | 680 | 119 | 799 | 48 | 3502.32.30 |
| NS 4 | DN 100 | 500 | 160 | 890 | 134 | 1024 | 55 | 3504.32.30 |
| NS 7 | DN 150 | 830 | 400 | 2120 | 301 | 2521 | 112 | 3507.32.30 |
| NS 10 | DN 150 | 1150 | 400 | 2450 | 311 | 2761 | 116 | 3510.32.30 |
| NS 15 | DN 200 | 1950 | 800 | 3610 | 357 | 3967 | 134 | 3515.32.30 |
| NS 20 | DN 200 | 2440 | 800 | 4070 | 358 | 4428 | 134 | 3520.32.30 |
Размеры
| Пропускная способность (расход) л/с. | L1 мм | L2 мм | L3 мм | H1 мм | H2 мм | H3 мм | H4 мм | D мм | D1 мм | Сост.части корпуса h/шт |
| NS 2 | 1255 | 60 | 200 | 975 | 905 | 1320 | 1520 | 110 | 1150 | 795/2 |
| NS 4 | 1255 | 60 | 200 | 1240 | 1170 | 1580 | 1780 | 110 | 1150 | 820/2 |
| NS 7 | 1820 | 60 | 200 | 1430 | 1330 | 1880 | 2080 | 160 | 1660 | 785/3 |
| NS 10 | 1820 | 60 | 200 | 1600 | 1500 | 2050 | 2250 | 160 | 1660 | 785/3 |
| NS 15 | 2130 | 60 | 200 | 1765 | 1665 | 2200 | 2400 | 200 | 1920 | 880/3 |
| NS 20 | 2130 | 60 | 200 | 1955 | 1855 | 2400 | 2600 | 200 | 1920 | 880/3 |
Артикулы
| Пропуск.способность (расход) л/с. | Диаметр патрубков входа выхода | Объем осадка л. | Объем жира л. | Общий объем | Вес кг пустой | Вес кг полный | Тяжелая часть | Артикул |
| NS 2 | DN 100 | 290 | 120 | 680 | 119 | 799 | 48 | 3502.32.30 |
| NS 4 | DN 100 | 500 | 160 | 890 | 134 | 1024 | 55 | 3504.32.30 |
| NS 7 | DN 150 | 830 | 400 | 2120 | 301 | 2521 | 112 | 3507.32.30 |
| NS 10 | DN 150 | 1150 | 400 | 2450 | 311 | 2761 | 116 | 3510.32.30 |
| NS 15 | DN 200 | 1950 | 800 | 3610 | 357 | 3967 | 134 | 3515.32.30 |
| NS 20 | DN 200 | 2440 | 800 | 4070 | 358 | 4428 | 134 | 3520.32.30 |
Размеры
| Пропускная способность (расход) л/с. | L1 мм | L2 мм | L3 мм | H1 мм | H2 мм | H3 мм | H4 мм | D мм | D1 мм | Сост.части корпуса h/шт |
| NS 2 | 1255 | 60 | 200 | 975 | 905 | 1320 | 1520 | 110 | 1150 | 795/2 |
| NS 4 | 1255 | 60 | 200 | 1240 | 1170 | 1580 | 1780 | 110 | 1150 | 820/2 |
| NS 7 | 1820 | 60 | 200 | 1430 | 1330 | 1880 | 2080 | 160 | 1660 | 785/3 |
| NS 10 | 1820 | 60 | 200 | 1600 | 1500 | 2050 | 2250 | 160 | 1660 | 785/3 |
| NS 15 | 2130 | 60 | 200 | 1765 | 1665 | 2200 | 2400 | 200 | 1920 | 880/3 |
| NS 20 | 2130 | 60 | 200 | 1955 | 1855 | 2400 | 2600 | 200 | 1920 | 880/3 |
LipuJet-P-RD
- Составной корпус из полиэтилена высокой плотности;
- Патрубки входа и выхода обеспечивают соединение с системой канализации;
- На корпусе предусмотрен патрубок DN100 для подсоединения вентиляционной трубы;
- При комплектации шаровым краном для наполнения отделителя водой, предусмотрен «разрыв струи»;
- Модель укомплектована отводом напорной трубы, которая выводится из здания, к месту подхода утилизационной машины;
- Откачка жироотделителя выполняется через напорную трубу с улицы;
- Промывка выполняется через ревизионные люки в верхней части корпуса. Для выполнения промывки, необходимо наличие подвода водопровода в помещение жироотделителя. Промывка выполняется вручную, водопроводной водой, с помощью шлангов. Вода от промывки должна быть откачана утилизационной машиной.

Артикулы
| Пропуск.способность (расход) л/с. | Диаметр патрубков входа выхода | Объем осадка л. | Объем жира л. | Общий объем | Вес кг пустой | Вес кг полный | Тяжелая часть | Артикул |
| NS 2 | DN 100 | 290 | 120 | 680 | 123 | 803 | 48 | 3502.62.30 |
| NS 4 | DN 100 | 500 | 160 | 890 | 139 | 1029 | 55 | 3504.62.30 |
| NS 7 | DN 150 | 830 | 400 | 2120 | 310 | 2430 | 112 | 3507.62.30 |
| NS 10 | DN 150 | 1150 | 400 | 2450 | 321 | 2771 | 116 | 3510.62.30 |
| NS 15 | DN 200 | 1950 | 800 | 3610 | 358 | 3968 | 134 | 3515.62.30 |
| NS 20 | DN 200 | 2440 | 800 | 4070 | 360 | 4430 | 134 | 3520.62.30 |
Размеры
| Пропускная способность (расход) л/с. | L1 мм | L2 мм | L3 мм | H1 мм | H2 мм | H3 мм | H4 мм | H5 мм | D мм | D1 мм | Сост.части корпуса h/шт |
| NS 2 | 1255 | 60 | 200 | 975 | 905 | 1320 | 1370 | 1520 | 110 | 1150 | 795/2 |
| NS 4 | 1255 | 60 | 200 | 1240 | 1170 | 1580 | 1630 | 1780 | 110 | 1150 | 820/2 |
| NS 7 | 1820 | 60 | 200 | 1430 | 1330 | 1880 | 1930 | 2080 | 160 | 1660 | 785/3 |
| NS 10 | 1820 | 60 | 200 | 1600 | 1500 | 2050 | 2100 | 2250 | 160 | 1660 | 785/3 |
| NS 15 | 2130 | 60 | 200 | 1765 | 1665 | 2200 | 2250 | 2400 | 200 | 1920 | 880/3 |
| NS 20 | 2130 | 60 | 200 | 1955 | 1855 | 2400 | 2450 | 2600 | 200 | 1920 | 880/3 |
Артикулы
| Пропуск.способность (расход) л/с. | Диаметр патрубков входа выхода | Объем осадка л. | Объем жира л. | Общий объем | Вес кг пустой | Вес кг полный | Тяжелая часть | Артикул |
| NS 2 | DN 100 | 290 | 120 | 680 | 123 | 803 | 48 | 3502.62.30 |
| NS 4 | DN 100 | 500 | 160 | 890 | 139 | 1029 | 55 | 3504.62.30 |
| NS 7 | DN 150 | 830 | 400 | 2120 | 310 | 2430 | 112 | 3507.62.30 |
| NS 10 | DN 150 | 1150 | 400 | 2450 | 321 | 2771 | 116 | 3510.62.30 |
| NS 15 | DN 200 | 1950 | 800 | 3610 | 358 | 3968 | 134 | 3515.62.30 |
| NS 20 | DN 200 | 2440 | 800 | 4070 | 360 | 4430 | 134 | 3520.62.30 |
Размеры
| Пропускная способность (расход) л/с. | L1 мм | L2 мм | L3 мм | H1 мм | H2 мм | H3 мм | H4 мм | H5 мм | D мм | D1 мм | Сост.части корпуса h/шт |
| NS 2 | 1255 | 60 | 200 | 975 | 905 | 1320 | 1370 | 1520 | 110 | 1150 | 795/2 |
| NS 4 | 1255 | 60 | 200 | 1240 | 1170 | 1580 | 1630 | 1780 | 110 | 1150 | 820/2 |
| NS 7 | 1820 | 60 | 200 | 1430 | 1330 | 1880 | 1930 | 2080 | 160 | 1660 | 785/3 |
| NS 10 | 1820 | 60 | 200 | 1600 | 1500 | 2050 | 2100 | 2250 | 160 | 1660 | 785/3 |
| NS 15 | 2130 | 60 | 200 | 1765 | 1665 | 2200 | 2250 | 2400 | 200 | 1920 | 880/3 |
| NS 20 | 2130 | 60 | 200 | 1955 | 1855 | 2400 | 2450 | 2600 | 200 | 1920 | 880/3 |
Lipujet-P-RM
- Составной корпус из полиэтилена высокой плотности;
- Патрубки входа и выхода обеспечивают соединение с системой канализации;
- На корпусе предусмотрен патрубок DN100 для подсоединения вентиляционной трубы;
- Между шаровым краном для наполнения водой и сифоном отделителя предусмотрен «разрыв струи»;
- Модель изготавливается в двух вариантах установки инспекционного окна – операционная сторона слева или операционная сторона справа, для обеспечения удобства контроля за уровнем жира через инспекционное окно. Выбор варианта зависит от расположения жироотделителя в помещении по отношению к направлению движения канализационного стока;
- Управление процессом откачки выполняется вручную, т.е. все устройства, обеспечивающие откачку и промывку, запускаются техником.
Модель оснащена устройствами:
- Система внутренней промывки – насос высокого давления 175 бар и моющая головка с форсунками;
- Отвод напорной трубы для вывода на фасад здания с муфтой для подключения шланга утилизационной машины;
- Инспекционное окно со стеклоочистителем;
- Шаровой кран для наполнения водой и регулятор давления.
- Потребность в электропитании: 400 В/50 Гц/3.9 кВт

Артикулы
Операционная сторона справа
| Пропуск.способность (расход) л/с. | Диаметр патрубков входа выхода | Объем осадка л. | Объем жира л. | Общий объем | Вес кг пустой | Вес кг полный | Тяжелая часть | Артикул |
| NS 2 | DN 100 | 290 | 120 | 680 | 156 | 836 | 48 | 3502.73.41 |
| NS 4 | DN 100 | 500 | 160 | 890 | 172 | 1062 | 55 | 3504.73.41 |
| NS 7 | DN 150 | 830 | 400 | 2120 | 344 | 2464 | 112 | 3507.73.41 |
| NS 10 | DN 150 | 1150 | 400 | 2450 | 355 | 2805 | 116 | 3510.73.41 |
| NS 15 | DN 200 | 1950 | 800 | 3610 | 391 | 4001 | 134 | 3515.73.41 |
| NS 20 | DN 200 | 2440 | 800 | 4070 | 392 | 4462 | 134 | 3520.73.41 |
Операционная сторона слева
| Пропуск.способность (расход) л/с. | Диаметр патрубков входа выхода | Объем осадка л. | Объем жира л. | Общий объем | Вес кг пустой | Вес кг полный | Тяжелая часть | Артикул |
| NS 2 | DN 100 | 290 | 120 | 680 | 156 | 836 | 48 | 3502.73.31 |
| NS 4 | DN 100 | 500 | 160 | 890 | 172 | 1062 | 55 | 3504.73.31 |
| NS 7 | DN 150 | 830 | 400 | 2120 | 344 | 2464 | 112 | 3507.73.31 |
| NS 10 | DN 150 | 1150 | 400 | 2450 | 355 | 2805 | 116 | 3510.73.31 |
| NS 15 | DN 200 | 1950 | 800 | 3610 | 391 | 4001 | 134 | 3515.73.31 |
| NS 20 | DN 200 | 2440 | 800 | 4070 | 392 | 4462 | 134 | 3520.73.31 |
Размеры
| Пропускная способность (расход) л/с. | L1 мм | L2 мм | L3 мм | L4 мм | H1 мм | H2 мм | H3 мм | H4 мм | H5 мм | D мм | D1 мм | Сост.части корпуса h/шт |
| NS 2 | 1255 | 60 | 200 | 260 | 975 | 905 | 1320 | 1370 | 1520 | 110 | 1150 | 795/2 |
| NS 4 | 1255 | 60 | 200 | 260 | 1240 | 1170 | 1580 | 1630 | 1780 | 110 | 1150 | 820/2 |
| NS 7 | 1820 | 60 | 200 | 260 | 1430 | 1330 | 1880 | 1930 | 2080 | 160 | 1660 | 785/3 |
| NS 10 | 1820 | 60 | 200 | 260 | 1600 | 1500 | 2050 | 2100 | 2250 | 160 | 1660 | 785/3 |
| NS 15 | 2130 | 60 | 200 | 260 | 1765 | 1665 | 2200 | 2250 | 2400 | 200 | 1920 | 880/3 |
| NS 20 | 2130 | 60 | 200 | 260 | 1955 | 1855 | 2400 | 2450 | 2600 | 200 | 1920 | 880/3 |
Чертежи жироотделителей ACO в формате AutoCad
Жироотделители ACO LipuJet-P-RM левый
Жироотделители ACO LipuJet-P-RM окно справа
BIM модели жироотделителей ACO
Жироотделители ACO LipuJet-P-RM операционная сторона слева
Жироотделители ACO LipuJet-P-RM операционная сторона справа
Артикулы
Операционная сторона справа
| Пропуск.способность (расход) л/с. | Диаметр патрубков входа выхода | Объем осадка л. | Объем жира л. | Общий объем | Вес кг пустой | Вес кг полный | Тяжелая часть | Артикул |
| NS 2 | DN 100 | 290 | 120 | 680 | 156 | 836 | 48 | 3502.73.41 |
| NS 4 | DN 100 | 500 | 160 | 890 | 172 | 1062 | 55 | 3504.73.41 |
| NS 7 | DN 150 | 830 | 400 | 2120 | 344 | 2464 | 112 | 3507.73.41 |
| NS 10 | DN 150 | 1150 | 400 | 2450 | 355 | 2805 | 116 | 3510.73.41 |
| NS 15 | DN 200 | 1950 | 800 | 3610 | 391 | 4001 | 134 | 3515.73.41 |
| NS 20 | DN 200 | 2440 | 800 | 4070 | 392 | 4462 | 134 | 3520.73.41 |
Операционная сторона слева
| Пропуск.способность (расход) л/с. | Диаметр патрубков входа выхода | Объем осадка л. | Объем жира л. | Общий объем | Вес кг пустой | Вес кг полный | Тяжелая часть | Артикул |
| NS 2 | DN 100 | 290 | 120 | 680 | 156 | 836 | 48 | 3502.73.31 |
| NS 4 | DN 100 | 500 | 160 | 890 | 172 | 1062 | 55 | 3504.73.31 |
| NS 7 | DN 150 | 830 | 400 | 2120 | 344 | 2464 | 112 | 3507.73.31 |
| NS 10 | DN 150 | 1150 | 400 | 2450 | 355 | 2805 | 116 | 3510.73.31 |
| NS 15 | DN 200 | 1950 | 800 | 3610 | 391 | 4001 | 134 | 3515.73.31 |
| NS 20 | DN 200 | 2440 | 800 | 4070 | 392 | 4462 | 134 | 3520.73.31 |
Размеры
| Пропускная способность (расход) л/с. | L1 мм | L2 мм | L3 мм | L4 мм | H1 мм | H2 мм | H3 мм | H4 мм | H5 мм | D мм | D1 мм | Сост.части корпуса h/шт |
| NS 2 | 1255 | 60 | 200 | 260 | 975 | 905 | 1320 | 1370 | 1520 | 110 | 1150 | 795/2 |
| NS 4 | 1255 | 60 | 200 | 260 | 1240 | 1170 | 1580 | 1630 | 1780 | 110 | 1150 | 820/2 |
| NS 7 | 1820 | 60 | 200 | 260 | 1430 | 1330 | 1880 | 1930 | 2080 | 160 | 1660 | 785/3 |
| NS 10 | 1820 | 60 | 200 | 260 | 1600 | 1500 | 2050 | 2100 | 2250 | 160 | 1660 | 785/3 |
| NS 15 | 2130 | 60 | 200 | 260 | 1765 | 1665 | 2200 | 2250 | 2400 | 200 | 1920 | 880/3 |
| NS 20 | 2130 | 60 | 200 | 260 | 1955 | 1855 | 2400 | 2450 | 2600 | 200 | 1920 | 880/3 |
Чертежи жироотделителей ACO в формате AutoCad
Жироотделители ACO LipuJet-P-RM левый
Жироотделители ACO LipuJet-P-RM окно справа
BIM модели жироотделителей ACO
Жироотделители ACO LipuJet-P-RM операционная сторона слева
Жироотделители ACO LipuJet-P-RM операционная сторона справа
Lipujet-P-RMP
- Сборный корпус из полиэтилена высокой плотности;
- Патрубки входа и выхода обеспечивают соединение с системой канализации;
- На корпусе предусмотрен патрубок DN100 для подсоединения вентиляционной трубы;
- Между шаровым краном для наполнения водой и сифоном отделителя предусмотрен «разрыв струи»;
- Модель изготавливается в двух вариантах установки инспекционного окна и щита управления – операционная сторона слева или операционная сторона справа, для обеспечения удобства эксплуатации. Выбор варианта зависит от расположения жироотделителя в помещении по отношению к направлению движения канализационного стока;
- Управление процессом откачки выполняется вручную, т.е. все устройства, обеспечивающие откачку и промывку, запускаются техником вручную со щита управления.
Модель оснащена устройствами:
- Система внутренней промывки – насос высокого давления 175 бар и моющая головка с форсунками;
- Отвод напорной трубы для вывода на фасад здания с муфтой для подключения шланга утилизационной машины;
- Инспекционное окно со стеклоочистителем;
- Шаровой кран для наполнения водой и регулятор давления;
- Насос откачки содержимого жироотделителя;
- Щит управления процессом откачки.
- Потребность в электропитании: 400 В/50 Гц/6.9 кВт

Артикулы
Операционная сторона справа
| Пропуск.способность (расход) л/с. | Диаметр патрубков входа выхода | Объем осадка л. | Объем жира л. | Общий объем | Вес кг пустой | Вес кг полный | Тяжелая часть | Артикул |
| NS 2 | DN 100 | 290 | 120 | 680 | 189 | 869 | 48 | 3502.73.81 |
| NS 4 | DN 100 | 500 | 160 | 890 | 205 | 1095 | 55 | 3504.73.81 |
| NS 7 | DN 150 | 830 | 400 | 2120 | 377 | 2497 | 112 | 3507.73.81 |
| NS 10 | DN 150 | 1150 | 400 | 2450 | 388 | 2838 | 116 | 3510.73.81 |
| NS 15 | DN 200 | 1950 | 800 | 3610 | 424 | 4034 | 134 | 3515.73.81 |
| NS 20 | DN 200 | 2440 | 800 | 4070 | 437 | 4507 | 134 | 3520.73.81 |
Операционная сторона слева
| Пропуск.способность (расход) л/с. | Диаметр патрубков входа выхода | Объем осадка л. | Объем жира л. | Общий объем | Вес кг пустой | Вес кг полный | Тяжелая часть | Артикул |
| NS 2 | DN 100 | 290 | 120 | 680 | 189 | 869 | 48 | 3502.73.71 |
| NS 4 | DN 100 | 500 | 160 | 890 | 205 | 1095 | 55 | 3504.73.71 |
| NS 7 | DN 150 | 830 | 400 | 2120 | 377 | 2497 | 112 | 3507.73.71 |
| NS 10 | DN 150 | 1150 | 400 | 2450 | 388 | 2838 | 116 | 3510.73.71 |
| NS 15 | DN 200 | 1950 | 800 | 3610 | 424 | 4034 | 134 | 3515.73.71 |
| NS 20 | DN 200 | 2440 | 800 | 4070 | 437 | 4507 | 134 | 3520.73.71 |
Размеры
| Пропускная способность (расход) л/с. | L1 мм | L2 мм | L3 мм | L4 мм | L5 мм | L6 мм | H1 мм | H2 мм | H3 мм | H4 мм | H5 мм | D мм | D1 мм | Сост.части корпуса h/шт |
| NS 2 | 1255 | 60 | 150 | 520 | 65 | 260 | 975 | 905 | 1320 | 1370 | 1520 | 110 | 1150 | 795/2 |
| NS 4 | 1255 | 60 | 150 | 520 | 65 | 260 | 1240 | 1170 | 1580 | 1630 | 1780 | 110 | 1150 | 820/2 |
| NS 7 | 1820 | 60 | 150 | 520 | 65 | 260 | 1430 | 1330 | 1880 | 1930 | 2080 | 160 | 1660 | 785/3 |
| NS 10 | 1820 | 60 | 150 | 520 | 65 | 260 | 1600 | 1500 | 2050 | 2100 | 2250 | 160 | 1660 | 785/3 |
| NS 15 | 2130 | 60 | 150 | 520 | 65 | 260 | 1765 | 1665 | 2200 | 2250 | 2400 | 200 | 1920 | 880/3 |
| NS 20 | 2130 | 60 | 150 | 520 | 65 | 260 | 1955 | 1855 | 2400 | 2450 | 2600 | 200 | 1920 | 880/3 |
Чертежи жироотделителей ACO в формате AutoCad
Жироотделители ACO LipuJet-P-RMP операционная сторона слева
Жироотделители ACO LipuJet-P-RMP операционная сторона справа
BIM модели жироотделителей ACO
Жироотделители ACO LipuJet-P-RMP операционная сторона слева
Жироотделители ACO LipuJet-P-RMP операционная сторона справа
Артикулы
Операционная сторона справа
| Пропуск.способность (расход) л/с. | Диаметр патрубков входа выхода | Объем осадка л. | Объем жира л. | Общий объем | Вес кг пустой | Вес кг полный | Тяжелая часть | Артикул |
| NS 2 | DN 100 | 290 | 120 | 680 | 189 | 869 | 48 | 3502.73.81 |
| NS 4 | DN 100 | 500 | 160 | 890 | 205 | 1095 | 55 | 3504.73.81 |
| NS 7 | DN 150 | 830 | 400 | 2120 | 377 | 2497 | 112 | 3507.73.81 |
| NS 10 | DN 150 | 1150 | 400 | 2450 | 388 | 2838 | 116 | 3510.73.81 |
| NS 15 | DN 200 | 1950 | 800 | 3610 | 424 | 4034 | 134 | 3515.73.81 |
| NS 20 | DN 200 | 2440 | 800 | 4070 | 437 | 4507 | 134 | 3520.73.81 |
Операционная сторона слева
| Пропуск.способность (расход) л/с. | Диаметр патрубков входа выхода | Объем осадка л. | Объем жира л. | Общий объем | Вес кг пустой | Вес кг полный | Тяжелая часть | Артикул |
| NS 2 | DN 100 | 290 | 120 | 680 | 189 | 869 | 48 | 3502.73.71 |
| NS 4 | DN 100 | 500 | 160 | 890 | 205 | 1095 | 55 | 3504.73.71 |
| NS 7 | DN 150 | 830 | 400 | 2120 | 377 | 2497 | 112 | 3507.73.71 |
| NS 10 | DN 150 | 1150 | 400 | 2450 | 388 | 2838 | 116 | 3510.73.71 |
| NS 15 | DN 200 | 1950 | 800 | 3610 | 424 | 4034 | 134 | 3515.73.71 |
| NS 20 | DN 200 | 2440 | 800 | 4070 | 437 | 4507 | 134 | 3520.73.71 |
Размеры
| Пропускная способность (расход) л/с. | L1 мм | L2 мм | L3 мм | L4 мм | L5 мм | L6 мм | H1 мм | H2 мм | H3 мм | H4 мм | H5 мм | D мм | D1 мм | Сост.части корпуса h/шт |
| NS 2 | 1255 | 60 | 150 | 520 | 65 | 260 | 975 | 905 | 1320 | 1370 | 1520 | 110 | 1150 | 795/2 |
| NS 4 | 1255 | 60 | 150 | 520 | 65 | 260 | 1240 | 1170 | 1580 | 1630 | 1780 | 110 | 1150 | 820/2 |
| NS 7 | 1820 | 60 | 150 | 520 | 65 | 260 | 1430 | 1330 | 1880 | 1930 | 2080 | 160 | 1660 | 785/3 |
| NS 10 | 1820 | 60 | 150 | 520 | 65 | 260 | 1600 | 1500 | 2050 | 2100 | 2250 | 160 | 1660 | 785/3 |
| NS 15 | 2130 | 60 | 150 | 520 | 65 | 260 | 1765 | 1665 | 2200 | 2250 | 2400 | 200 | 1920 | 880/3 |
| NS 20 | 2130 | 60 | 150 | 520 | 65 | 260 | 1955 | 1855 | 2400 | 2450 | 2600 | 200 | 1920 | 880/3 |
Чертежи жироотделителей ACO в формате AutoCad
Жироотделители ACO LipuJet-P-RMP операционная сторона слева
Жироотделители ACO LipuJet-P-RMP операционная сторона справа
BIM модели жироотделителей ACO
Жироотделители ACO LipuJet-P-RMP операционная сторона слева
Жироотделители ACO LipuJet-P-RMP операционная сторона справа
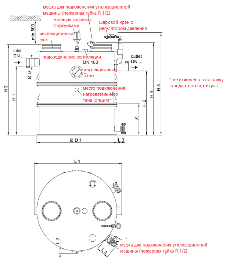
Lipujet-P-RA
- Сборный корпус из полиэтилена высокой плотности;
- Патрубки входа и выхода обеспечивают соединение с системой канализации;
- На корпусе предусмотрен патрубок DN100 для подсоединения вентиляционной трубы;
- Между шаровым краном для наполнения водой и сифоном отделителя предусмотрен «разрыв струи»;
- Модель изготавливается в двух вариантах установки инспекционного окна – операционная сторона слева или операционная сторона справа, для обеспечения удобства контроля за уровнем жира через инспекционное окно. Выбор варианта зависит от расположения жироотделителя в помещении по отношению к направлению движения канализационного стока;
- Управление процессом откачки выполняется в автоматическом режиме, т.е. все устройства, обеспечивающие откачку и промывку, запускаются в соответствии с программой.
Модель оснащена устройствами:
- Система внутренней промывки – насос высокого давления 175 бар и моющая головка с форсунками;
- Отвод напорной трубы для вывода на фасад здания с муфтой для подключения шланга утилизационной машины;
- Инспекционное окно со стеклоочистителем;
- Соленоидный автоматический клапан для подачи и регулятор давления;
- Щит управления процессом откачки.
- Потребность в электропитании: 400 В/50 Гц/3.9 кВт

Артикулы
Операционная сторона справа
| Пропуск.способность (расход) л/с. | Диаметр патрубков входа выхода | Объем осадка л. | Объем жира л. | Общий объем | Вес кг пустой | Вес кг полный | Тяжелая часть | Артикул |
| NS 2 | DN 100 | 290 | 120 | 680 | 165 | 845 | 48 | 3502.73.42 |
| NS 4 | DN 100 | 500 | 160 | 890 | 181 | 1071 | 55 | 3504.73.42 |
| NS 7 | DN 150 | 830 | 400 | 2120 | 353 | 2473 | 112 | 3507.73.42 |
| NS 10 | DN 150 | 1150 | 400 | 2450 | 364 | 2814 | 116 | 3510.73.42 |
| NS 15 | DN 200 | 1950 | 800 | 3610 | 401 | 4011 | 134 | 3515.73.42 |
| NS 20 | DN 200 | 2440 | 800 | 4070 | 401 | 4471 | 134 | 3520.73.42 |
Операционная сторона слева
| Пропуск.способность (расход) л/с. | Диаметр патрубков входа выхода | Объем осадка л. | Объем жира л. | Общий объем | Вес кг пустой | Вес кг полный | Тяжелая часть | Артикул |
| NS 2 | DN 100 | 290 | 120 | 680 | 165 | 845 | 48 | 3502.73.32 |
| NS 4 | DN 100 | 500 | 160 | 890 | 181 | 1071 | 55 | 3504.73.32 |
| NS 7 | DN 150 | 830 | 400 | 2120 | 353 | 2473 | 112 | 3507.73.32 |
| NS 10 | DN 150 | 1150 | 400 | 2450 | 364 | 2814 | 116 | 3510.73.32 |
| NS 15 | DN 200 | 1950 | 800 | 3610 | 401 | 4011 | 134 | 3515.73.32 |
| NS 20 | DN 200 | 2440 | 800 | 4070 | 401 | 4471 | 134 | 3520.73.32 |
Размеры
| Пропускная способность (расход) л/с. | L1 мм | L2 мм | L3 мм | L4 мм | L5 мм | H1 мм | H2 мм | H3 мм | H4 мм | H5 мм | D мм | D1 мм | Сост.части корпуса h/шт |
| NS 2 | 1255 | 60 | 200 | 65 | 260 | 975 | 905 | 1320 | 1370 | 1570 | 110 | 1150 | 795/2 |
| NS 4 | 1255 | 60 | 200 | 65 | 260 | 1240 | 1170 | 1580 | 1630 | 1830 | 110 | 1150 | 820/2 |
| NS 7 | 1820 | 60 | 200 | 65 | 260 | 1430 | 1330 | 1880 | 1930 | 2130 | 160 | 1660 | 785/3 |
| NS 10 | 1820 | 60 | 200 | 65 | 260 | 1600 | 1500 | 2050 | 2100 | 2300 | 160 | 1660 | 785/3 |
| NS 15 | 2130 | 60 | 200 | 65 | 260 | 1765 | 1665 | 2200 | 2250 | 2450 | 200 | 1920 | 880/3 |
| NS 20 | 2130 | 60 | 200 | 65 | 260 | 1955 | 1855 | 2400 | 2450 | 2650 | 200 | 1920 | 880/3 |
Чертежи жироотделителей ACO в формате AutoCad
Жироотделители ACO LipuJet-P-RA операционная система слева
Жироотделители ACO LipuJet-P-RA операционная система справа
BIM модели жироотделителей ACO
Жироотделители ACO LipuJet-P-RA операционная система слева
Жироотделители ACO LipuJet-P-RA операционная система справа
Артикулы
Операционная сторона справа
| Пропуск.способность (расход) л/с. | Диаметр патрубков входа выхода | Объем осадка л. | Объем жира л. | Общий объем | Вес кг пустой | Вес кг полный | Тяжелая часть | Артикул |
| NS 2 | DN 100 | 290 | 120 | 680 | 165 | 845 | 48 | 3502.73.42 |
| NS 4 | DN 100 | 500 | 160 | 890 | 181 | 1071 | 55 | 3504.73.42 |
| NS 7 | DN 150 | 830 | 400 | 2120 | 353 | 2473 | 112 | 3507.73.42 |
| NS 10 | DN 150 | 1150 | 400 | 2450 | 364 | 2814 | 116 | 3510.73.42 |
| NS 15 | DN 200 | 1950 | 800 | 3610 | 401 | 4011 | 134 | 3515.73.42 |
| NS 20 | DN 200 | 2440 | 800 | 4070 | 401 | 4471 | 134 | 3520.73.42 |
Операционная сторона слева
| Пропуск.способность (расход) л/с. | Диаметр патрубков входа выхода | Объем осадка л. | Объем жира л. | Общий объем | Вес кг пустой | Вес кг полный | Тяжелая часть | Артикул |
| NS 2 | DN 100 | 290 | 120 | 680 | 165 | 845 | 48 | 3502.73.32 |
| NS 4 | DN 100 | 500 | 160 | 890 | 181 | 1071 | 55 | 3504.73.32 |
| NS 7 | DN 150 | 830 | 400 | 2120 | 353 | 2473 | 112 | 3507.73.32 |
| NS 10 | DN 150 | 1150 | 400 | 2450 | 364 | 2814 | 116 | 3510.73.32 |
| NS 15 | DN 200 | 1950 | 800 | 3610 | 401 | 4011 | 134 | 3515.73.32 |
| NS 20 | DN 200 | 2440 | 800 | 4070 | 401 | 4471 | 134 | 3520.73.32 |
Размеры
| Пропускная способность (расход) л/с. | L1 мм | L2 мм | L3 мм | L4 мм | L5 мм | H1 мм | H2 мм | H3 мм | H4 мм | H5 мм | D мм | D1 мм | Сост.части корпуса h/шт |
| NS 2 | 1255 | 60 | 200 | 65 | 260 | 975 | 905 | 1320 | 1370 | 1570 | 110 | 1150 | 795/2 |
| NS 4 | 1255 | 60 | 200 | 65 | 260 | 1240 | 1170 | 1580 | 1630 | 1830 | 110 | 1150 | 820/2 |
| NS 7 | 1820 | 60 | 200 | 65 | 260 | 1430 | 1330 | 1880 | 1930 | 2130 | 160 | 1660 | 785/3 |
| NS 10 | 1820 | 60 | 200 | 65 | 260 | 1600 | 1500 | 2050 | 2100 | 2300 | 160 | 1660 | 785/3 |
| NS 15 | 2130 | 60 | 200 | 65 | 260 | 1765 | 1665 | 2200 | 2250 | 2450 | 200 | 1920 | 880/3 |
| NS 20 | 2130 | 60 | 200 | 65 | 260 | 1955 | 1855 | 2400 | 2450 | 2650 | 200 | 1920 | 880/3 |
Чертежи жироотделителей ACO в формате AutoCad
Жироотделители ACO LipuJet-P-RA операционная система слева
Жироотделители ACO LipuJet-P-RA операционная система справа
BIM модели жироотделителей ACO
Жироотделители ACO LipuJet-P-RA операционная система слева
Жироотделители ACO LipuJet-P-RA операционная система справа
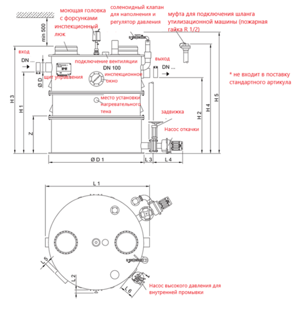
Lipujet-P-RAP
- Сборный корпус из полиэтилена высокой плотности;
- Патрубки входа и выхода обеспечивают соединение с системой канализации;
- На корпусе предусмотрен патрубок DN100 для подсоединения вентиляционной трубы;
- Между шаровым краном для наполнения водой и сифоном отделителя предусмотрен «разрыв струи»;
- Модель изготавливается в двух вариантах установки инспекционного окна и щита управления – операционная сторона слева или операционная сторона справа, для обеспечения удобства эксплуатации. Выбор варианта зависит от расположения жироотделителя в помещении по отношению к направлению движения канализационного стока;
- Управление процессом откачки выполняется автоматически, т.е. все устройства, обеспечивающие откачку и промывку, запускаются программой.
Модель оснащена устройствами:
- Система внутренней промывки – насос высокого давления 175 бар и моющая головка с форсунками;
- Отвод напорной трубы для вывода на фасад здания с муфтой для подключения шланга утилизационной машины;
- Инспекционное окно со стеклоочистителем;
- Соленоидный клапан для подачи воды и регулятор давления;
- Насос откачки содержимого жироотделителя;
- Щит управления процессом откачки.
- Потребность в электропитании: 400 В/50 Гц/6.9 кВт

Артикулы
Операционная сторона справа
| Пропуск.способность (расход) л/с. | Диаметр патрубков входа выхода | Объем осадка л. | Объем жира л. | Общий объем | Вес кг пустой | Вес кг полный | Тяжелая часть | Артикул |
| NS 2 | DN 100 | 290 | 120 | 680 | 194 | 874 | 48 | 3502.73.82 |
| NS 4 | DN 100 | 500 | 160 | 890 | 210 | 1100 | 55 | 3504.73.82 |
| NS 7 | DN 150 | 830 | 400 | 2120 | 382 | 2502 | 112 | 3507.73.82 |
| NS 10 | DN 150 | 1150 | 400 | 2450 | 393 | 2843 | 116 | 3510.73.82 |
| NS 15 | DN 200 | 1950 | 800 | 3610 | 442 | 4052 | 134 | 3515.73.82 |
| NS 20 | DN 200 | 2440 | 800 | 4070 | 443 | 4513 | 134 | 3520.73.82 |
Операционная сторона слева
| Пропуск.способность (расход) л/с. | Диаметр патрубков входа выхода | Объем осадка л. | Объем жира л. | Общий объем | Вес кг пустой | Вес кг полный | Тяжелая часть | Артикул |
| NS 2 | DN 100 | 290 | 120 | 680 | 194 | 874 | 48 | 3502.73.72 |
| NS 4 | DN 100 | 500 | 160 | 890 | 210 | 1100 | 55 | 3504.73.72 |
| NS 7 | DN 150 | 830 | 400 | 2120 | 382 | 2502 | 112 | 3507.73.72 |
| NS 10 | DN 150 | 1150 | 400 | 2450 | 393 | 2843 | 116 | 3510.73.72 |
| NS 15 | DN 200 | 1950 | 800 | 3610 | 442 | 4052 | 134 | 3515.73.72 |
| NS 20 | DN 200 | 2440 | 800 | 4070 | 443 | 4513 | 134 | 3520.73.72 |
Размеры
| Пропускная способность (расход) л/с. | L1 мм | L2 мм | L3 мм | L4 мм | L5 мм | L6 | H1 мм | H2 мм | H3 мм | H4 мм | H5 мм | D мм | D1 мм | Сост.части корпуса h/шт |
| NS 2 | 1255 | 60 | 150 | 520 | 65 | 260 | 975 | 905 | 1320 | 1370 | 1570 | 110 | 1150 | 795/2 |
| NS 4 | 1255 | 60 | 150 | 520 | 65 | 260 | 1240 | 1170 | 1580 | 1630 | 1830 | 110 | 1150 | 820/2 |
| NS 7 | 1820 | 60 | 150 | 520 | 65 | 260 | 1430 | 1330 | 1880 | 1930 | 2130 | 160 | 1660 | 785/3 |
| NS 10 | 1820 | 60 | 150 | 520 | 65 | 260 | 1600 | 1500 | 2050 | 2100 | 2300 | 160 | 1660 | 785/3 |
| NS 15 | 2130 | 60 | 150 | 520 | 65 | 260 | 1765 | 1665 | 2200 | 2250 | 2450 | 200 | 1920 | 880/3 |
| NS 20 | 2130 | 60 | 150 | 520 | 65 | 260 | 1955 | 1855 | 2400 | 2450 | 2650 | 200 | 1920 | 880/3 |
Чертежи жироотделителей ACO в формате AutoCad
Жироотделители ACO LipuJet-P-RAP операционная система слева
Жироотделители ACO LipuJet-P-RAP операционная система справа
BIM модели жироотделителей ACO
Жироотделители ACO LipuJet-P-RAP операционная система слева
Жироотделители ACO LipuJet-P-RAP операционная система справа
Артикулы
Операционная сторона справа
| Пропуск.способность (расход) л/с. | Диаметр патрубков входа выхода | Объем осадка л. | Объем жира л. | Общий объем | Вес кг пустой | Вес кг полный | Тяжелая часть | Артикул |
| NS 2 | DN 100 | 290 | 120 | 680 | 194 | 874 | 48 | 3502.73.82 |
| NS 4 | DN 100 | 500 | 160 | 890 | 210 | 1100 | 55 | 3504.73.82 |
| NS 7 | DN 150 | 830 | 400 | 2120 | 382 | 2502 | 112 | 3507.73.82 |
| NS 10 | DN 150 | 1150 | 400 | 2450 | 393 | 2843 | 116 | 3510.73.82 |
| NS 15 | DN 200 | 1950 | 800 | 3610 | 442 | 4052 | 134 | 3515.73.82 |
| NS 20 | DN 200 | 2440 | 800 | 4070 | 443 | 4513 | 134 | 3520.73.82 |
Операционная сторона слева
| Пропуск.способность (расход) л/с. | Диаметр патрубков входа выхода | Объем осадка л. | Объем жира л. | Общий объем | Вес кг пустой | Вес кг полный | Тяжелая часть | Артикул |
| NS 2 | DN 100 | 290 | 120 | 680 | 194 | 874 | 48 | 3502.73.72 |
| NS 4 | DN 100 | 500 | 160 | 890 | 210 | 1100 | 55 | 3504.73.72 |
| NS 7 | DN 150 | 830 | 400 | 2120 | 382 | 2502 | 112 | 3507.73.72 |
| NS 10 | DN 150 | 1150 | 400 | 2450 | 393 | 2843 | 116 | 3510.73.72 |
| NS 15 | DN 200 | 1950 | 800 | 3610 | 442 | 4052 | 134 | 3515.73.72 |
| NS 20 | DN 200 | 2440 | 800 | 4070 | 443 | 4513 | 134 | 3520.73.72 |
Размеры
| Пропускная способность (расход) л/с. | L1 мм | L2 мм | L3 мм | L4 мм | L5 мм | L6 | H1 мм | H2 мм | H3 мм | H4 мм | H5 мм | D мм | D1 мм | Сост.части корпуса h/шт |
| NS 2 | 1255 | 60 | 150 | 520 | 65 | 260 | 975 | 905 | 1320 | 1370 | 1570 | 110 | 1150 | 795/2 |
| NS 4 | 1255 | 60 | 150 | 520 | 65 | 260 | 1240 | 1170 | 1580 | 1630 | 1830 | 110 | 1150 | 820/2 |
| NS 7 | 1820 | 60 | 150 | 520 | 65 | 260 | 1430 | 1330 | 1880 | 1930 | 2130 | 160 | 1660 | 785/3 |
| NS 10 | 1820 | 60 | 150 | 520 | 65 | 260 | 1600 | 1500 | 2050 | 2100 | 2300 | 160 | 1660 | 785/3 |
| NS 15 | 2130 | 60 | 150 | 520 | 65 | 260 | 1765 | 1665 | 2200 | 2250 | 2450 | 200 | 1920 | 880/3 |
| NS 20 | 2130 | 60 | 150 | 520 | 65 | 260 | 1955 | 1855 | 2400 | 2450 | 2650 | 200 | 1920 | 880/3 |
Чертежи жироотделителей ACO в формате AutoCad
Жироотделители ACO LipuJet-P-RAP операционная система слева
Жироотделители ACO LipuJet-P-RAP операционная система справа
BIM модели жироотделителей ACO
Жироотделители ACO LipuJet-P-RAP операционная система слева
Жироотделители ACO LipuJet-P-RAP операционная система справа
Lipujet-P-RB
- Базовая модель;
- Составной корпус из полиэтилена высокой плотности;
- Патрубки входа и выхода обеспечивают соединение с системой канализации;
- При комплектации шаровым краном для наполнения отделителя водой, предусмотрен «разрыв струи»;
- Крышки инспекционных люков герметично закрываются в верхней части корпуса;
- Откачка и промывка проводится через люки в верхней части корпуса;
- На корпусе предусмотрен патрубок DN100 для подсоединения вентиляционной трубы.

Артикулы
| Пропуск.способность (расход) л/с. | Диаметр патрубков входа выхода | Объем осадка л. | Объем жира л. | Общий объем | Вес кг пустой | Вес кг полный | Тяжелая часть | Артикул |
| NS 2 | DN 100 | 290 | 120 | 680 | 119 | 799 | 48 | 3502.32.30 |
| NS 4 | DN 100 | 500 | 160 | 890 | 134 | 1024 | 55 | 3504.32.30 |
| NS 7 | DN 150 | 830 | 400 | 2120 | 301 | 2521 | 112 | 3507.32.30 |
| NS 10 | DN 150 | 1150 | 400 | 2450 | 311 | 2761 | 116 | 3510.32.30 |
| NS 15 | DN 200 | 1950 | 800 | 3610 | 357 | 3967 | 134 | 3515.32.30 |
| NS 20 | DN 200 | 2440 | 800 | 4070 | 358 | 4428 | 134 | 3520.32.30 |
Размеры
| Пропускная способность (расход) л/с. | L1 мм | L2 мм | L3 мм | H1 мм | H2 мм | H3 мм | H4 мм | D мм | D1 мм | Сост.части корпуса h/шт |
| NS 2 | 1255 | 60 | 200 | 975 | 905 | 1320 | 1520 | 110 | 1150 | 795/2 |
| NS 4 | 1255 | 60 | 200 | 1240 | 1170 | 1580 | 1780 | 110 | 1150 | 820/2 |
| NS 7 | 1820 | 60 | 200 | 1430 | 1330 | 1880 | 2080 | 160 | 1660 | 785/3 |
| NS 10 | 1820 | 60 | 200 | 1600 | 1500 | 2050 | 2250 | 160 | 1660 | 785/3 |
| NS 15 | 2130 | 60 | 200 | 1765 | 1665 | 2200 | 2400 | 200 | 1920 | 880/3 |
| NS 20 | 2130 | 60 | 200 | 1955 | 1855 | 2400 | 2600 | 200 | 1920 | 880/3 |
Артикулы
| Пропуск.способность (расход) л/с. | Диаметр патрубков входа выхода | Объем осадка л. | Объем жира л. | Общий объем | Вес кг пустой | Вес кг полный | Тяжелая часть | Артикул |
| NS 2 | DN 100 | 290 | 120 | 680 | 119 | 799 | 48 | 3502.32.30 |
| NS 4 | DN 100 | 500 | 160 | 890 | 134 | 1024 | 55 | 3504.32.30 |
| NS 7 | DN 150 | 830 | 400 | 2120 | 301 | 2521 | 112 | 3507.32.30 |
| NS 10 | DN 150 | 1150 | 400 | 2450 | 311 | 2761 | 116 | 3510.32.30 |
| NS 15 | DN 200 | 1950 | 800 | 3610 | 357 | 3967 | 134 | 3515.32.30 |
| NS 20 | DN 200 | 2440 | 800 | 4070 | 358 | 4428 | 134 | 3520.32.30 |
Размеры
| Пропускная способность (расход) л/с. | L1 мм | L2 мм | L3 мм | H1 мм | H2 мм | H3 мм | H4 мм | D мм | D1 мм | Сост.части корпуса h/шт |
| NS 2 | 1255 | 60 | 200 | 975 | 905 | 1320 | 1520 | 110 | 1150 | 795/2 |
| NS 4 | 1255 | 60 | 200 | 1240 | 1170 | 1580 | 1780 | 110 | 1150 | 820/2 |
| NS 7 | 1820 | 60 | 200 | 1430 | 1330 | 1880 | 2080 | 160 | 1660 | 785/3 |
| NS 10 | 1820 | 60 | 200 | 1600 | 1500 | 2050 | 2250 | 160 | 1660 | 785/3 |
| NS 15 | 2130 | 60 | 200 | 1765 | 1665 | 2200 | 2400 | 200 | 1920 | 880/3 |
| NS 20 | 2130 | 60 | 200 | 1955 | 1855 | 2400 | 2600 | 200 | 1920 | 880/3 |
LipuJet-P-RD
- Составной корпус из полиэтилена высокой плотности;
- Патрубки входа и выхода обеспечивают соединение с системой канализации;
- На корпусе предусмотрен патрубок DN100 для подсоединения вентиляционной трубы;
- При комплектации шаровым краном для наполнения отделителя водой, предусмотрен «разрыв струи»;
- Модель укомплектована отводом напорной трубы, которая выводится из здания, к месту подхода утилизационной машины;
- Откачка жироотделителя выполняется через напорную трубу с улицы;
- Промывка выполняется через ревизионные люки в верхней части корпуса. Для выполнения промывки, необходимо наличие подвода водопровода в помещение жироотделителя. Промывка выполняется вручную, водопроводной водой, с помощью шлангов. Вода от промывки должна быть откачана утилизационной машиной.

Артикулы
| Пропуск.способность (расход) л/с. | Диаметр патрубков входа выхода | Объем осадка л. | Объем жира л. | Общий объем | Вес кг пустой | Вес кг полный | Тяжелая часть | Артикул |
| NS 2 | DN 100 | 290 | 120 | 680 | 123 | 803 | 48 | 3502.62.30 |
| NS 4 | DN 100 | 500 | 160 | 890 | 139 | 1029 | 55 | 3504.62.30 |
| NS 7 | DN 150 | 830 | 400 | 2120 | 310 | 2430 | 112 | 3507.62.30 |
| NS 10 | DN 150 | 1150 | 400 | 2450 | 321 | 2771 | 116 | 3510.62.30 |
| NS 15 | DN 200 | 1950 | 800 | 3610 | 358 | 3968 | 134 | 3515.62.30 |
| NS 20 | DN 200 | 2440 | 800 | 4070 | 360 | 4430 | 134 | 3520.62.30 |
Размеры
| Пропускная способность (расход) л/с. | L1 мм | L2 мм | L3 мм | H1 мм | H2 мм | H3 мм | H4 мм | H5 мм | D мм | D1 мм | Сост.части корпуса h/шт |
| NS 2 | 1255 | 60 | 200 | 975 | 905 | 1320 | 1370 | 1520 | 110 | 1150 | 795/2 |
| NS 4 | 1255 | 60 | 200 | 1240 | 1170 | 1580 | 1630 | 1780 | 110 | 1150 | 820/2 |
| NS 7 | 1820 | 60 | 200 | 1430 | 1330 | 1880 | 1930 | 2080 | 160 | 1660 | 785/3 |
| NS 10 | 1820 | 60 | 200 | 1600 | 1500 | 2050 | 2100 | 2250 | 160 | 1660 | 785/3 |
| NS 15 | 2130 | 60 | 200 | 1765 | 1665 | 2200 | 2250 | 2400 | 200 | 1920 | 880/3 |
| NS 20 | 2130 | 60 | 200 | 1955 | 1855 | 2400 | 2450 | 2600 | 200 | 1920 | 880/3 |
Артикулы
| Пропуск.способность (расход) л/с. | Диаметр патрубков входа выхода | Объем осадка л. | Объем жира л. | Общий объем | Вес кг пустой | Вес кг полный | Тяжелая часть | Артикул |
| NS 2 | DN 100 | 290 | 120 | 680 | 123 | 803 | 48 | 3502.62.30 |
| NS 4 | DN 100 | 500 | 160 | 890 | 139 | 1029 | 55 | 3504.62.30 |
| NS 7 | DN 150 | 830 | 400 | 2120 | 310 | 2430 | 112 | 3507.62.30 |
| NS 10 | DN 150 | 1150 | 400 | 2450 | 321 | 2771 | 116 | 3510.62.30 |
| NS 15 | DN 200 | 1950 | 800 | 3610 | 358 | 3968 | 134 | 3515.62.30 |
| NS 20 | DN 200 | 2440 | 800 | 4070 | 360 | 4430 | 134 | 3520.62.30 |
Размеры
| Пропускная способность (расход) л/с. | L1 мм | L2 мм | L3 мм | H1 мм | H2 мм | H3 мм | H4 мм | H5 мм | D мм | D1 мм | Сост.части корпуса h/шт |
| NS 2 | 1255 | 60 | 200 | 975 | 905 | 1320 | 1370 | 1520 | 110 | 1150 | 795/2 |
| NS 4 | 1255 | 60 | 200 | 1240 | 1170 | 1580 | 1630 | 1780 | 110 | 1150 | 820/2 |
| NS 7 | 1820 | 60 | 200 | 1430 | 1330 | 1880 | 1930 | 2080 | 160 | 1660 | 785/3 |
| NS 10 | 1820 | 60 | 200 | 1600 | 1500 | 2050 | 2100 | 2250 | 160 | 1660 | 785/3 |
| NS 15 | 2130 | 60 | 200 | 1765 | 1665 | 2200 | 2250 | 2400 | 200 | 1920 | 880/3 |
| NS 20 | 2130 | 60 | 200 | 1955 | 1855 | 2400 | 2450 | 2600 | 200 | 1920 | 880/3 |
Lipujet-P-RM
- Составной корпус из полиэтилена высокой плотности;
- Патрубки входа и выхода обеспечивают соединение с системой канализации;
- На корпусе предусмотрен патрубок DN100 для подсоединения вентиляционной трубы;
- Между шаровым краном для наполнения водой и сифоном отделителя предусмотрен «разрыв струи»;
- Модель изготавливается в двух вариантах установки инспекционного окна – операционная сторона слева или операционная сторона справа, для обеспечения удобства контроля за уровнем жира через инспекционное окно. Выбор варианта зависит от расположения жироотделителя в помещении по отношению к направлению движения канализационного стока;
- Управление процессом откачки выполняется вручную, т.е. все устройства, обеспечивающие откачку и промывку, запускаются техником.
Модель оснащена устройствами:
- Система внутренней промывки – насос высокого давления 175 бар и моющая головка с форсунками;
- Отвод напорной трубы для вывода на фасад здания с муфтой для подключения шланга утилизационной машины;
- Инспекционное окно со стеклоочистителем;
- Шаровой кран для наполнения водой и регулятор давления.
- Потребность в электропитании: 400 В/50 Гц/3.9 кВт

Артикулы
Операционная сторона справа
| Пропуск.способность (расход) л/с. | Диаметр патрубков входа выхода | Объем осадка л. | Объем жира л. | Общий объем | Вес кг пустой | Вес кг полный | Тяжелая часть | Артикул |
| NS 2 | DN 100 | 290 | 120 | 680 | 156 | 836 | 48 | 3502.73.41 |
| NS 4 | DN 100 | 500 | 160 | 890 | 172 | 1062 | 55 | 3504.73.41 |
| NS 7 | DN 150 | 830 | 400 | 2120 | 344 | 2464 | 112 | 3507.73.41 |
| NS 10 | DN 150 | 1150 | 400 | 2450 | 355 | 2805 | 116 | 3510.73.41 |
| NS 15 | DN 200 | 1950 | 800 | 3610 | 391 | 4001 | 134 | 3515.73.41 |
| NS 20 | DN 200 | 2440 | 800 | 4070 | 392 | 4462 | 134 | 3520.73.41 |
Операционная сторона слева
| Пропуск.способность (расход) л/с. | Диаметр патрубков входа выхода | Объем осадка л. | Объем жира л. | Общий объем | Вес кг пустой | Вес кг полный | Тяжелая часть | Артикул |
| NS 2 | DN 100 | 290 | 120 | 680 | 156 | 836 | 48 | 3502.73.31 |
| NS 4 | DN 100 | 500 | 160 | 890 | 172 | 1062 | 55 | 3504.73.31 |
| NS 7 | DN 150 | 830 | 400 | 2120 | 344 | 2464 | 112 | 3507.73.31 |
| NS 10 | DN 150 | 1150 | 400 | 2450 | 355 | 2805 | 116 | 3510.73.31 |
| NS 15 | DN 200 | 1950 | 800 | 3610 | 391 | 4001 | 134 | 3515.73.31 |
| NS 20 | DN 200 | 2440 | 800 | 4070 | 392 | 4462 | 134 | 3520.73.31 |
Размеры
| Пропускная способность (расход) л/с. | L1 мм | L2 мм | L3 мм | L4 мм | H1 мм | H2 мм | H3 мм | H4 мм | H5 мм | D мм | D1 мм | Сост.части корпуса h/шт |
| NS 2 | 1255 | 60 | 200 | 260 | 975 | 905 | 1320 | 1370 | 1520 | 110 | 1150 | 795/2 |
| NS 4 | 1255 | 60 | 200 | 260 | 1240 | 1170 | 1580 | 1630 | 1780 | 110 | 1150 | 820/2 |
| NS 7 | 1820 | 60 | 200 | 260 | 1430 | 1330 | 1880 | 1930 | 2080 | 160 | 1660 | 785/3 |
| NS 10 | 1820 | 60 | 200 | 260 | 1600 | 1500 | 2050 | 2100 | 2250 | 160 | 1660 | 785/3 |
| NS 15 | 2130 | 60 | 200 | 260 | 1765 | 1665 | 2200 | 2250 | 2400 | 200 | 1920 | 880/3 |
| NS 20 | 2130 | 60 | 200 | 260 | 1955 | 1855 | 2400 | 2450 | 2600 | 200 | 1920 | 880/3 |
Чертежи жироотделителей ACO в формате AutoCad
Жироотделители ACO LipuJet-P-RM левый
Жироотделители ACO LipuJet-P-RM окно справа
BIM модели жироотделителей ACO
Жироотделители ACO LipuJet-P-RM операционная сторона слева
Жироотделители ACO LipuJet-P-RM операционная сторона справа
Артикулы
Операционная сторона справа
| Пропуск.способность (расход) л/с. | Диаметр патрубков входа выхода | Объем осадка л. | Объем жира л. | Общий объем | Вес кг пустой | Вес кг полный | Тяжелая часть | Артикул |
| NS 2 | DN 100 | 290 | 120 | 680 | 156 | 836 | 48 | 3502.73.41 |
| NS 4 | DN 100 | 500 | 160 | 890 | 172 | 1062 | 55 | 3504.73.41 |
| NS 7 | DN 150 | 830 | 400 | 2120 | 344 | 2464 | 112 | 3507.73.41 |
| NS 10 | DN 150 | 1150 | 400 | 2450 | 355 | 2805 | 116 | 3510.73.41 |
| NS 15 | DN 200 | 1950 | 800 | 3610 | 391 | 4001 | 134 | 3515.73.41 |
| NS 20 | DN 200 | 2440 | 800 | 4070 | 392 | 4462 | 134 | 3520.73.41 |
Операционная сторона слева
| Пропуск.способность (расход) л/с. | Диаметр патрубков входа выхода | Объем осадка л. | Объем жира л. | Общий объем | Вес кг пустой | Вес кг полный | Тяжелая часть | Артикул |
| NS 2 | DN 100 | 290 | 120 | 680 | 156 | 836 | 48 | 3502.73.31 |
| NS 4 | DN 100 | 500 | 160 | 890 | 172 | 1062 | 55 | 3504.73.31 |
| NS 7 | DN 150 | 830 | 400 | 2120 | 344 | 2464 | 112 | 3507.73.31 |
| NS 10 | DN 150 | 1150 | 400 | 2450 | 355 | 2805 | 116 | 3510.73.31 |
| NS 15 | DN 200 | 1950 | 800 | 3610 | 391 | 4001 | 134 | 3515.73.31 |
| NS 20 | DN 200 | 2440 | 800 | 4070 | 392 | 4462 | 134 | 3520.73.31 |
Размеры
| Пропускная способность (расход) л/с. | L1 мм | L2 мм | L3 мм | L4 мм | H1 мм | H2 мм | H3 мм | H4 мм | H5 мм | D мм | D1 мм | Сост.части корпуса h/шт |
| NS 2 | 1255 | 60 | 200 | 260 | 975 | 905 | 1320 | 1370 | 1520 | 110 | 1150 | 795/2 |
| NS 4 | 1255 | 60 | 200 | 260 | 1240 | 1170 | 1580 | 1630 | 1780 | 110 | 1150 | 820/2 |
| NS 7 | 1820 | 60 | 200 | 260 | 1430 | 1330 | 1880 | 1930 | 2080 | 160 | 1660 | 785/3 |
| NS 10 | 1820 | 60 | 200 | 260 | 1600 | 1500 | 2050 | 2100 | 2250 | 160 | 1660 | 785/3 |
| NS 15 | 2130 | 60 | 200 | 260 | 1765 | 1665 | 2200 | 2250 | 2400 | 200 | 1920 | 880/3 |
| NS 20 | 2130 | 60 | 200 | 260 | 1955 | 1855 | 2400 | 2450 | 2600 | 200 | 1920 | 880/3 |
Чертежи жироотделителей ACO в формате AutoCad
Жироотделители ACO LipuJet-P-RM левый
Жироотделители ACO LipuJet-P-RM окно справа
BIM модели жироотделителей ACO
Жироотделители ACO LipuJet-P-RM операционная сторона слева
Жироотделители ACO LipuJet-P-RM операционная сторона справа
Lipujet-P-RMP
- Сборный корпус из полиэтилена высокой плотности;
- Патрубки входа и выхода обеспечивают соединение с системой канализации;
- На корпусе предусмотрен патрубок DN100 для подсоединения вентиляционной трубы;
- Между шаровым краном для наполнения водой и сифоном отделителя предусмотрен «разрыв струи»;
- Модель изготавливается в двух вариантах установки инспекционного окна и щита управления – операционная сторона слева или операционная сторона справа, для обеспечения удобства эксплуатации. Выбор варианта зависит от расположения жироотделителя в помещении по отношению к направлению движения канализационного стока;
- Управление процессом откачки выполняется вручную, т.е. все устройства, обеспечивающие откачку и промывку, запускаются техником вручную со щита управления.
Модель оснащена устройствами:
- Система внутренней промывки – насос высокого давления 175 бар и моющая головка с форсунками;
- Отвод напорной трубы для вывода на фасад здания с муфтой для подключения шланга утилизационной машины;
- Инспекционное окно со стеклоочистителем;
- Шаровой кран для наполнения водой и регулятор давления;
- Насос откачки содержимого жироотделителя;
- Щит управления процессом откачки.
- Потребность в электропитании: 400 В/50 Гц/6.9 кВт

Артикулы
Операционная сторона справа
| Пропуск.способность (расход) л/с. | Диаметр патрубков входа выхода | Объем осадка л. | Объем жира л. | Общий объем | Вес кг пустой | Вес кг полный | Тяжелая часть | Артикул |
| NS 2 | DN 100 | 290 | 120 | 680 | 189 | 869 | 48 | 3502.73.81 |
| NS 4 | DN 100 | 500 | 160 | 890 | 205 | 1095 | 55 | 3504.73.81 |
| NS 7 | DN 150 | 830 | 400 | 2120 | 377 | 2497 | 112 | 3507.73.81 |
| NS 10 | DN 150 | 1150 | 400 | 2450 | 388 | 2838 | 116 | 3510.73.81 |
| NS 15 | DN 200 | 1950 | 800 | 3610 | 424 | 4034 | 134 | 3515.73.81 |
| NS 20 | DN 200 | 2440 | 800 | 4070 | 437 | 4507 | 134 | 3520.73.81 |
Операционная сторона слева
| Пропуск.способность (расход) л/с. | Диаметр патрубков входа выхода | Объем осадка л. | Объем жира л. | Общий объем | Вес кг пустой | Вес кг полный | Тяжелая часть | Артикул |
| NS 2 | DN 100 | 290 | 120 | 680 | 189 | 869 | 48 | 3502.73.71 |
| NS 4 | DN 100 | 500 | 160 | 890 | 205 | 1095 | 55 | 3504.73.71 |
| NS 7 | DN 150 | 830 | 400 | 2120 | 377 | 2497 | 112 | 3507.73.71 |
| NS 10 | DN 150 | 1150 | 400 | 2450 | 388 | 2838 | 116 | 3510.73.71 |
| NS 15 | DN 200 | 1950 | 800 | 3610 | 424 | 4034 | 134 | 3515.73.71 |
| NS 20 | DN 200 | 2440 | 800 | 4070 | 437 | 4507 | 134 | 3520.73.71 |
Размеры
| Пропускная способность (расход) л/с. | L1 мм | L2 мм | L3 мм | L4 мм | L5 мм | L6 мм | H1 мм | H2 мм | H3 мм | H4 мм | H5 мм | D мм | D1 мм | Сост.части корпуса h/шт |
| NS 2 | 1255 | 60 | 150 | 520 | 65 | 260 | 975 | 905 | 1320 | 1370 | 1520 | 110 | 1150 | 795/2 |
| NS 4 | 1255 | 60 | 150 | 520 | 65 | 260 | 1240 | 1170 | 1580 | 1630 | 1780 | 110 | 1150 | 820/2 |
| NS 7 | 1820 | 60 | 150 | 520 | 65 | 260 | 1430 | 1330 | 1880 | 1930 | 2080 | 160 | 1660 | 785/3 |
| NS 10 | 1820 | 60 | 150 | 520 | 65 | 260 | 1600 | 1500 | 2050 | 2100 | 2250 | 160 | 1660 | 785/3 |
| NS 15 | 2130 | 60 | 150 | 520 | 65 | 260 | 1765 | 1665 | 2200 | 2250 | 2400 | 200 | 1920 | 880/3 |
| NS 20 | 2130 | 60 | 150 | 520 | 65 | 260 | 1955 | 1855 | 2400 | 2450 | 2600 | 200 | 1920 | 880/3 |
Чертежи жироотделителей ACO в формате AutoCad
Жироотделители ACO LipuJet-P-RMP операционная сторона слева
Жироотделители ACO LipuJet-P-RMP операционная сторона справа
BIM модели жироотделителей ACO
Жироотделители ACO LipuJet-P-RMP операционная сторона слева
Жироотделители ACO LipuJet-P-RMP операционная сторона справа
Артикулы
Операционная сторона справа
| Пропуск.способность (расход) л/с. | Диаметр патрубков входа выхода | Объем осадка л. | Объем жира л. | Общий объем | Вес кг пустой | Вес кг полный | Тяжелая часть | Артикул |
| NS 2 | DN 100 | 290 | 120 | 680 | 189 | 869 | 48 | 3502.73.81 |
| NS 4 | DN 100 | 500 | 160 | 890 | 205 | 1095 | 55 | 3504.73.81 |
| NS 7 | DN 150 | 830 | 400 | 2120 | 377 | 2497 | 112 | 3507.73.81 |
| NS 10 | DN 150 | 1150 | 400 | 2450 | 388 | 2838 | 116 | 3510.73.81 |
| NS 15 | DN 200 | 1950 | 800 | 3610 | 424 | 4034 | 134 | 3515.73.81 |
| NS 20 | DN 200 | 2440 | 800 | 4070 | 437 | 4507 | 134 | 3520.73.81 |
Операционная сторона слева
| Пропуск.способность (расход) л/с. | Диаметр патрубков входа выхода | Объем осадка л. | Объем жира л. | Общий объем | Вес кг пустой | Вес кг полный | Тяжелая часть | Артикул |
| NS 2 | DN 100 | 290 | 120 | 680 | 189 | 869 | 48 | 3502.73.71 |
| NS 4 | DN 100 | 500 | 160 | 890 | 205 | 1095 | 55 | 3504.73.71 |
| NS 7 | DN 150 | 830 | 400 | 2120 | 377 | 2497 | 112 | 3507.73.71 |
| NS 10 | DN 150 | 1150 | 400 | 2450 | 388 | 2838 | 116 | 3510.73.71 |
| NS 15 | DN 200 | 1950 | 800 | 3610 | 424 | 4034 | 134 | 3515.73.71 |
| NS 20 | DN 200 | 2440 | 800 | 4070 | 437 | 4507 | 134 | 3520.73.71 |
Размеры
| Пропускная способность (расход) л/с. | L1 мм | L2 мм | L3 мм | L4 мм | L5 мм | L6 мм | H1 мм | H2 мм | H3 мм | H4 мм | H5 мм | D мм | D1 мм | Сост.части корпуса h/шт |
| NS 2 | 1255 | 60 | 150 | 520 | 65 | 260 | 975 | 905 | 1320 | 1370 | 1520 | 110 | 1150 | 795/2 |
| NS 4 | 1255 | 60 | 150 | 520 | 65 | 260 | 1240 | 1170 | 1580 | 1630 | 1780 | 110 | 1150 | 820/2 |
| NS 7 | 1820 | 60 | 150 | 520 | 65 | 260 | 1430 | 1330 | 1880 | 1930 | 2080 | 160 | 1660 | 785/3 |
| NS 10 | 1820 | 60 | 150 | 520 | 65 | 260 | 1600 | 1500 | 2050 | 2100 | 2250 | 160 | 1660 | 785/3 |
| NS 15 | 2130 | 60 | 150 | 520 | 65 | 260 | 1765 | 1665 | 2200 | 2250 | 2400 | 200 | 1920 | 880/3 |
| NS 20 | 2130 | 60 | 150 | 520 | 65 | 260 | 1955 | 1855 | 2400 | 2450 | 2600 | 200 | 1920 | 880/3 |
Чертежи жироотделителей ACO в формате AutoCad
Жироотделители ACO LipuJet-P-RMP операционная сторона слева
Жироотделители ACO LipuJet-P-RMP операционная сторона справа
BIM модели жироотделителей ACO
Жироотделители ACO LipuJet-P-RMP операционная сторона слева
Жироотделители ACO LipuJet-P-RMP операционная сторона справа
Lipujet-P-RA
- Сборный корпус из полиэтилена высокой плотности;
- Патрубки входа и выхода обеспечивают соединение с системой канализации;
- На корпусе предусмотрен патрубок DN100 для подсоединения вентиляционной трубы;
- Между шаровым краном для наполнения водой и сифоном отделителя предусмотрен «разрыв струи»;
- Модель изготавливается в двух вариантах установки инспекционного окна – операционная сторона слева или операционная сторона справа, для обеспечения удобства контроля за уровнем жира через инспекционное окно. Выбор варианта зависит от расположения жироотделителя в помещении по отношению к направлению движения канализационного стока;
- Управление процессом откачки выполняется в автоматическом режиме, т.е. все устройства, обеспечивающие откачку и промывку, запускаются в соответствии с программой.
Модель оснащена устройствами:
- Система внутренней промывки – насос высокого давления 175 бар и моющая головка с форсунками;
- Отвод напорной трубы для вывода на фасад здания с муфтой для подключения шланга утилизационной машины;
- Инспекционное окно со стеклоочистителем;
- Соленоидный автоматический клапан для подачи и регулятор давления;
- Щит управления процессом откачки.
- Потребность в электропитании: 400 В/50 Гц/3.9 кВт

Артикулы
Операционная сторона справа
| Пропуск.способность (расход) л/с. | Диаметр патрубков входа выхода | Объем осадка л. | Объем жира л. | Общий объем | Вес кг пустой | Вес кг полный | Тяжелая часть | Артикул |
| NS 2 | DN 100 | 290 | 120 | 680 | 165 | 845 | 48 | 3502.73.42 |
| NS 4 | DN 100 | 500 | 160 | 890 | 181 | 1071 | 55 | 3504.73.42 |
| NS 7 | DN 150 | 830 | 400 | 2120 | 353 | 2473 | 112 | 3507.73.42 |
| NS 10 | DN 150 | 1150 | 400 | 2450 | 364 | 2814 | 116 | 3510.73.42 |
| NS 15 | DN 200 | 1950 | 800 | 3610 | 401 | 4011 | 134 | 3515.73.42 |
| NS 20 | DN 200 | 2440 | 800 | 4070 | 401 | 4471 | 134 | 3520.73.42 |
Операционная сторона слева
| Пропуск.способность (расход) л/с. | Диаметр патрубков входа выхода | Объем осадка л. | Объем жира л. | Общий объем | Вес кг пустой | Вес кг полный | Тяжелая часть | Артикул |
| NS 2 | DN 100 | 290 | 120 | 680 | 165 | 845 | 48 | 3502.73.32 |
| NS 4 | DN 100 | 500 | 160 | 890 | 181 | 1071 | 55 | 3504.73.32 |
| NS 7 | DN 150 | 830 | 400 | 2120 | 353 | 2473 | 112 | 3507.73.32 |
| NS 10 | DN 150 | 1150 | 400 | 2450 | 364 | 2814 | 116 | 3510.73.32 |
| NS 15 | DN 200 | 1950 | 800 | 3610 | 401 | 4011 | 134 | 3515.73.32 |
| NS 20 | DN 200 | 2440 | 800 | 4070 | 401 | 4471 | 134 | 3520.73.32 |
Размеры
| Пропускная способность (расход) л/с. | L1 мм | L2 мм | L3 мм | L4 мм | L5 мм | H1 мм | H2 мм | H3 мм | H4 мм | H5 мм | D мм | D1 мм | Сост.части корпуса h/шт |
| NS 2 | 1255 | 60 | 200 | 65 | 260 | 975 | 905 | 1320 | 1370 | 1570 | 110 | 1150 | 795/2 |
| NS 4 | 1255 | 60 | 200 | 65 | 260 | 1240 | 1170 | 1580 | 1630 | 1830 | 110 | 1150 | 820/2 |
| NS 7 | 1820 | 60 | 200 | 65 | 260 | 1430 | 1330 | 1880 | 1930 | 2130 | 160 | 1660 | 785/3 |
| NS 10 | 1820 | 60 | 200 | 65 | 260 | 1600 | 1500 | 2050 | 2100 | 2300 | 160 | 1660 | 785/3 |
| NS 15 | 2130 | 60 | 200 | 65 | 260 | 1765 | 1665 | 2200 | 2250 | 2450 | 200 | 1920 | 880/3 |
| NS 20 | 2130 | 60 | 200 | 65 | 260 | 1955 | 1855 | 2400 | 2450 | 2650 | 200 | 1920 | 880/3 |
Чертежи жироотделителей ACO в формате AutoCad
Жироотделители ACO LipuJet-P-RA операционная система слева
Жироотделители ACO LipuJet-P-RA операционная система справа
BIM модели жироотделителей ACO
Жироотделители ACO LipuJet-P-RA операционная система слева
Жироотделители ACO LipuJet-P-RA операционная система справа
Артикулы
Операционная сторона справа
| Пропуск.способность (расход) л/с. | Диаметр патрубков входа выхода | Объем осадка л. | Объем жира л. | Общий объем | Вес кг пустой | Вес кг полный | Тяжелая часть | Артикул |
| NS 2 | DN 100 | 290 | 120 | 680 | 165 | 845 | 48 | 3502.73.42 |
| NS 4 | DN 100 | 500 | 160 | 890 | 181 | 1071 | 55 | 3504.73.42 |
| NS 7 | DN 150 | 830 | 400 | 2120 | 353 | 2473 | 112 | 3507.73.42 |
| NS 10 | DN 150 | 1150 | 400 | 2450 | 364 | 2814 | 116 | 3510.73.42 |
| NS 15 | DN 200 | 1950 | 800 | 3610 | 401 | 4011 | 134 | 3515.73.42 |
| NS 20 | DN 200 | 2440 | 800 | 4070 | 401 | 4471 | 134 | 3520.73.42 |
Операционная сторона слева
| Пропуск.способность (расход) л/с. | Диаметр патрубков входа выхода | Объем осадка л. | Объем жира л. | Общий объем | Вес кг пустой | Вес кг полный | Тяжелая часть | Артикул |
| NS 2 | DN 100 | 290 | 120 | 680 | 165 | 845 | 48 | 3502.73.32 |
| NS 4 | DN 100 | 500 | 160 | 890 | 181 | 1071 | 55 | 3504.73.32 |
| NS 7 | DN 150 | 830 | 400 | 2120 | 353 | 2473 | 112 | 3507.73.32 |
| NS 10 | DN 150 | 1150 | 400 | 2450 | 364 | 2814 | 116 | 3510.73.32 |
| NS 15 | DN 200 | 1950 | 800 | 3610 | 401 | 4011 | 134 | 3515.73.32 |
| NS 20 | DN 200 | 2440 | 800 | 4070 | 401 | 4471 | 134 | 3520.73.32 |
Размеры
| Пропускная способность (расход) л/с. | L1 мм | L2 мм | L3 мм | L4 мм | L5 мм | H1 мм | H2 мм | H3 мм | H4 мм | H5 мм | D мм | D1 мм | Сост.части корпуса h/шт |
| NS 2 | 1255 | 60 | 200 | 65 | 260 | 975 | 905 | 1320 | 1370 | 1570 | 110 | 1150 | 795/2 |
| NS 4 | 1255 | 60 | 200 | 65 | 260 | 1240 | 1170 | 1580 | 1630 | 1830 | 110 | 1150 | 820/2 |
| NS 7 | 1820 | 60 | 200 | 65 | 260 | 1430 | 1330 | 1880 | 1930 | 2130 | 160 | 1660 | 785/3 |
| NS 10 | 1820 | 60 | 200 | 65 | 260 | 1600 | 1500 | 2050 | 2100 | 2300 | 160 | 1660 | 785/3 |
| NS 15 | 2130 | 60 | 200 | 65 | 260 | 1765 | 1665 | 2200 | 2250 | 2450 | 200 | 1920 | 880/3 |
| NS 20 | 2130 | 60 | 200 | 65 | 260 | 1955 | 1855 | 2400 | 2450 | 2650 | 200 | 1920 | 880/3 |
Чертежи жироотделителей ACO в формате AutoCad
Жироотделители ACO LipuJet-P-RA операционная система слева
Жироотделители ACO LipuJet-P-RA операционная система справа
BIM модели жироотделителей ACO
Жироотделители ACO LipuJet-P-RA операционная система слева
Жироотделители ACO LipuJet-P-RA операционная система справа
Lipujet-P-RAP
- Сборный корпус из полиэтилена высокой плотности;
- Патрубки входа и выхода обеспечивают соединение с системой канализации;
- На корпусе предусмотрен патрубок DN100 для подсоединения вентиляционной трубы;
- Между шаровым краном для наполнения водой и сифоном отделителя предусмотрен «разрыв струи»;
- Модель изготавливается в двух вариантах установки инспекционного окна и щита управления – операционная сторона слева или операционная сторона справа, для обеспечения удобства эксплуатации. Выбор варианта зависит от расположения жироотделителя в помещении по отношению к направлению движения канализационного стока;
- Управление процессом откачки выполняется автоматически, т.е. все устройства, обеспечивающие откачку и промывку, запускаются программой.
Модель оснащена устройствами:
- Система внутренней промывки – насос высокого давления 175 бар и моющая головка с форсунками;
- Отвод напорной трубы для вывода на фасад здания с муфтой для подключения шланга утилизационной машины;
- Инспекционное окно со стеклоочистителем;
- Соленоидный клапан для подачи воды и регулятор давления;
- Насос откачки содержимого жироотделителя;
- Щит управления процессом откачки.
- Потребность в электропитании: 400 В/50 Гц/6.9 кВт

Артикулы
Операционная сторона справа
| Пропуск.способность (расход) л/с. | Диаметр патрубков входа выхода | Объем осадка л. | Объем жира л. | Общий объем | Вес кг пустой | Вес кг полный | Тяжелая часть | Артикул |
| NS 2 | DN 100 | 290 | 120 | 680 | 194 | 874 | 48 | 3502.73.82 |
| NS 4 | DN 100 | 500 | 160 | 890 | 210 | 1100 | 55 | 3504.73.82 |
| NS 7 | DN 150 | 830 | 400 | 2120 | 382 | 2502 | 112 | 3507.73.82 |
| NS 10 | DN 150 | 1150 | 400 | 2450 | 393 | 2843 | 116 | 3510.73.82 |
| NS 15 | DN 200 | 1950 | 800 | 3610 | 442 | 4052 | 134 | 3515.73.82 |
| NS 20 | DN 200 | 2440 | 800 | 4070 | 443 | 4513 | 134 | 3520.73.82 |
Операционная сторона слева
| Пропуск.способность (расход) л/с. | Диаметр патрубков входа выхода | Объем осадка л. | Объем жира л. | Общий объем | Вес кг пустой | Вес кг полный | Тяжелая часть | Артикул |
| NS 2 | DN 100 | 290 | 120 | 680 | 194 | 874 | 48 | 3502.73.72 |
| NS 4 | DN 100 | 500 | 160 | 890 | 210 | 1100 | 55 | 3504.73.72 |
| NS 7 | DN 150 | 830 | 400 | 2120 | 382 | 2502 | 112 | 3507.73.72 |
| NS 10 | DN 150 | 1150 | 400 | 2450 | 393 | 2843 | 116 | 3510.73.72 |
| NS 15 | DN 200 | 1950 | 800 | 3610 | 442 | 4052 | 134 | 3515.73.72 |
| NS 20 | DN 200 | 2440 | 800 | 4070 | 443 | 4513 | 134 | 3520.73.72 |
Размеры
| Пропускная способность (расход) л/с. | L1 мм | L2 мм | L3 мм | L4 мм | L5 мм | L6 | H1 мм | H2 мм | H3 мм | H4 мм | H5 мм | D мм | D1 мм | Сост.части корпуса h/шт |
| NS 2 | 1255 | 60 | 150 | 520 | 65 | 260 | 975 | 905 | 1320 | 1370 | 1570 | 110 | 1150 | 795/2 |
| NS 4 | 1255 | 60 | 150 | 520 | 65 | 260 | 1240 | 1170 | 1580 | 1630 | 1830 | 110 | 1150 | 820/2 |
| NS 7 | 1820 | 60 | 150 | 520 | 65 | 260 | 1430 | 1330 | 1880 | 1930 | 2130 | 160 | 1660 | 785/3 |
| NS 10 | 1820 | 60 | 150 | 520 | 65 | 260 | 1600 | 1500 | 2050 | 2100 | 2300 | 160 | 1660 | 785/3 |
| NS 15 | 2130 | 60 | 150 | 520 | 65 | 260 | 1765 | 1665 | 2200 | 2250 | 2450 | 200 | 1920 | 880/3 |
| NS 20 | 2130 | 60 | 150 | 520 | 65 | 260 | 1955 | 1855 | 2400 | 2450 | 2650 | 200 | 1920 | 880/3 |
Чертежи жироотделителей ACO в формате AutoCad
Жироотделители ACO LipuJet-P-RAP операционная система слева
Жироотделители ACO LipuJet-P-RAP операционная система справа
BIM модели жироотделителей ACO
Жироотделители ACO LipuJet-P-RAP операционная система слева
Жироотделители ACO LipuJet-P-RAP операционная система справа
Артикулы
Операционная сторона справа
| Пропуск.способность (расход) л/с. | Диаметр патрубков входа выхода | Объем осадка л. | Объем жира л. | Общий объем | Вес кг пустой | Вес кг полный | Тяжелая часть | Артикул |
| NS 2 | DN 100 | 290 | 120 | 680 | 194 | 874 | 48 | 3502.73.82 |
| NS 4 | DN 100 | 500 | 160 | 890 | 210 | 1100 | 55 | 3504.73.82 |
| NS 7 | DN 150 | 830 | 400 | 2120 | 382 | 2502 | 112 | 3507.73.82 |
| NS 10 | DN 150 | 1150 | 400 | 2450 | 393 | 2843 | 116 | 3510.73.82 |
| NS 15 | DN 200 | 1950 | 800 | 3610 | 442 | 4052 | 134 | 3515.73.82 |
| NS 20 | DN 200 | 2440 | 800 | 4070 | 443 | 4513 | 134 | 3520.73.82 |
Операционная сторона слева
| Пропуск.способность (расход) л/с. | Диаметр патрубков входа выхода | Объем осадка л. | Объем жира л. | Общий объем | Вес кг пустой | Вес кг полный | Тяжелая часть | Артикул |
| NS 2 | DN 100 | 290 | 120 | 680 | 194 | 874 | 48 | 3502.73.72 |
| NS 4 | DN 100 | 500 | 160 | 890 | 210 | 1100 | 55 | 3504.73.72 |
| NS 7 | DN 150 | 830 | 400 | 2120 | 382 | 2502 | 112 | 3507.73.72 |
| NS 10 | DN 150 | 1150 | 400 | 2450 | 393 | 2843 | 116 | 3510.73.72 |
| NS 15 | DN 200 | 1950 | 800 | 3610 | 442 | 4052 | 134 | 3515.73.72 |
| NS 20 | DN 200 | 2440 | 800 | 4070 | 443 | 4513 | 134 | 3520.73.72 |
Размеры
| Пропускная способность (расход) л/с. | L1 мм | L2 мм | L3 мм | L4 мм | L5 мм | L6 | H1 мм | H2 мм | H3 мм | H4 мм | H5 мм | D мм | D1 мм | Сост.части корпуса h/шт |
| NS 2 | 1255 | 60 | 150 | 520 | 65 | 260 | 975 | 905 | 1320 | 1370 | 1570 | 110 | 1150 | 795/2 |
| NS 4 | 1255 | 60 | 150 | 520 | 65 | 260 | 1240 | 1170 | 1580 | 1630 | 1830 | 110 | 1150 | 820/2 |
| NS 7 | 1820 | 60 | 150 | 520 | 65 | 260 | 1430 | 1330 | 1880 | 1930 | 2130 | 160 | 1660 | 785/3 |
| NS 10 | 1820 | 60 | 150 | 520 | 65 | 260 | 1600 | 1500 | 2050 | 2100 | 2300 | 160 | 1660 | 785/3 |
| NS 15 | 2130 | 60 | 150 | 520 | 65 | 260 | 1765 | 1665 | 2200 | 2250 | 2450 | 200 | 1920 | 880/3 |
| NS 20 | 2130 | 60 | 150 | 520 | 65 | 260 | 1955 | 1855 | 2400 | 2450 | 2650 | 200 | 1920 | 880/3 |
Чертежи жироотделителей ACO в формате AutoCad
Жироотделители ACO LipuJet-P-RAP операционная система слева
Жироотделители ACO LipuJet-P-RAP операционная система справа
BIM модели жироотделителей ACO
Жироотделители ACO LipuJet-P-RAP операционная система слева
Жироотделители ACO LipuJet-P-RAP операционная система справа









