Колодец стеклопластиковый под установку УФ-обеззараживания сточной воды ACO UV
Особенности
- Не требует применение реагентов;
- Трубная обвязка из н/ж стали с запорной арматурой;
- УФ доза 40мДж/см2 – соответствует СаНПиН 2.1.5.980-00;
- На расходе более 20л/с применяются амальгамные лампы, что сокращает их количество до 4 раз.
- Возможен монтаж параллельно-установленных ламп в одном стеклопластиковом корпусе.
Полный список файлов доступен в подразделе "Загрузки". Если Вам необходима дополнительная информация, отправьте запрос на почту info@acogroup.ru
Для надежного обеззараживания стока перед сбросом в водоемы рыбохозяйственного или культурно-бытового назначения применяется специализированное оборудование для очистки сточных вод — блок ультрафиолетового обеззараживания (УФО). Он устанавливается на завершающей стадии очистки, непосредственно после комплекса очистных сооружений.
Внутри корпуса блока УФО размещены бактерицидные УФ-лампы, защищенные кварцевыми чехлами, обеспечивающими эффективное уничтожение патогенных микроорганизмов. Сам блок монтируется в прочный стеклопластиковый резервуар — как вертикальный колодец, так и горизонтальную емкость — что обеспечивает гибкость интеграции в существующие системы очистки.
Это решение идеально подходит для предприятий, требующих соответствия экологическим нормам и безопасного сброса сточных вод в природные водоемы.
Устройство и принцип работы блока УФ-обеззараживания
Оборудование для очистки сточных вод ACO представляет собой компактное подземное сооружение — цилиндрический сухой резервуар, который может монтироваться как вертикально, так и горизонтально. Внутри него размещается установка ультрафиолетового обеззараживания — ключевой элемент для надежного обеззараживания стока перед его сбросом в окружающую среду.
Как работает система?
- Подача воды: Сточная вода поступает в блок через подводящий коллектор.
- Процесс обеззараживания: Вода равномерно обтекает кварцевые чехлы, внутри которых расположены бактерицидные УФ-лампы. Под воздействием ультрафиолетового излучения с длиной волны 254 нм патогенные микроорганизмы инактивируются — это и есть основа современного обеззараживания стока.
- Сброс обработанной воды: После прохождения зоны облучения очищенная вода направляется в выходной патрубок и далее — на сброс или повторное использование.
На чем основано эффективное обеззараживание?
Эффективность оборудования для очистки сточных вод определяется дозой УФ-облучения — ключевым параметром, рассчитываемым как произведение интенсивности излучения (мВт/см²) и времени воздействия (секунды). Результат выражается в миллиджоулях на квадратный сантиметр (мДж/см²).
Чем выше доза — тем выше степень инактивации бактерий, вирусов и других патогенов. Именно этот параметр является главной характеристикой любой установки УФ-обеззараживания и гарантирует соответствие нормам санитарной безопасности и экологическим требованиям.
Рекомендации по подбору
Основными параметрами подбора установки УФО является расход и тип стока. По этим параметрам можно произвести предварительный подбор оборудования. Для более детального подбора оборудования необходимо заполнить опросный лист.
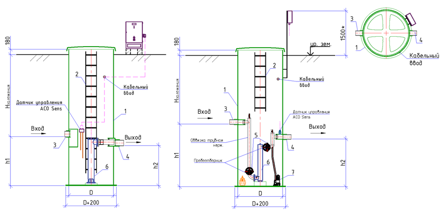
Общий вид установки
Эффективность очистки
Эффективность обеззараживания от вредоносных микроорганизмов составляет 99,9%.
* - установка проводит лишь обеззараживание стока, а не его очистку, поэтому концентрации взвешенных веществ и нефтепродуктов на входе не должны превышать допустимых параметров для сброса в водоемы рыбо-хозяйственного и культурно-бытового назначения.
Сухие установки
| Марка | Q, л/с | D, мм | dy, мм | Н1, мм | Н2, мм |
| ACO UV-1,5 (V) | 1,5 | 1200 | 110 | 1900 | 1400 |
| ACO UV-2 (V) | 2 | ||||
| ACO UV-3 (V) | 3 | 1500 | |||
| ACO UV-4 (V) | 4 | ||||
| ACO UV-5 (V) | 5 | 2100 | 1600 | ||
| ACO UV-8 (V) | 8 | 160 | |||
| ACO UV-11 (V) | 11 | 2000 | 1900 | 1400 | |
| ACO UV-13 (V) | 13 | ||||
| ACO UV-16 (V) | 16 | 200 | |||
| ACO UV-22 (V) | 22 | 2150 | 1650 | ||
| ACO UV-27 (V) | 27 | 250 | |||
| ACO UV-33(V) | 33 | ||||
| ACO UV-41 (V) | 41 | 315 | |||
| ACO UV-55 (V) | 55 | 2200 | 2200 | 1700 | |
| ACO UV-69 (V) | 69 | 400 | |||
| ACO UV-83 (V) | 83 | 3000 | |||
| ACO UV-97 (V) | 97 | ||||
| ACO UV-110 (V) | 110 | 500 | 2300 | 1800 | |
| ACO UV-138 (V) | 130 | 630 | |||
| ACO UV-166 (V) | 166 | 3400 | 630 |
Погружные установки
| Марка | Q, л/с | D, мм | dy, мм | Н1, мм | Н2, мм |
| ACO UV-3 (W) | 3 | 1200 | 110 | 1450 | 1350 |
| ACO UV-4 (W) | 4 | ||||
| ACO UV-5 (W) | 5 | 1500 | |||
| ACO UV-6 (W) | 6 | ||||
| ACO UV-7 (W) | 7 | 160 | 1550 | ||
| ACO UV-8 (W) | 8 | 1600 | |||
| ACO UV-9 (W) | 9 | ||||
| ACO UV-10 (W) | 10 | 1650 | |||
| ACO UV-13(W) | 13 | 1500 | 200 | ||
| ACO UV-15 (W) | 15 | ||||
| ACO UV-17 (W) | 17 | ||||
| ACO UV-20 (W) | 20 | ||||
| ACO UV-25 (W) | 25 | 1950 | 1650 | ||
| ACO UV-30 (W) | 30 | ||||
| ACO UV-35 (W) | 35 | ||||
| ACO UV-40 (W) | 40 | 315 | |||
| ACO UV-45 (W) | 45 | ||||
| ACO UV-50 (W) | 50 | ||||
| ACO UV-55 (W) | 55 | 1800 | 2000 | 1700 | |
| ACO UV-60 (W) | 60 | 400 | |||
| ACO UV-70 (W) | 70 | ||||
| ACO UV-80 (W) | 80 | 2000 | |||
| ACO UV-90 (W) | 90 | ||||
| ACO UV-100 (W) | 100 | ||||
| ACO UV-120 (W) | 120 | 500 |
Особенности/ дополнительные возможности
- Возможно изготовление в наземном исполнении с защитой от УФ-излучения.
- Может изготавливаться в усиленном исполнении для расположения под проезжей частью с чугунным люком,
а так же в сейсмостойком исполнении.
- Доступны варианты изготовления в горизонтальном корпусе.
- Изготовление в двух вариантах: в сухом колодце и погружная установка.
- По заказу горизонтальный корпус комплектуется металлическими стяжными ремнями.
- Широкая вариативность установки шкафа управления (в колодце с лампой; на улице, возле колодца; в близи стоящем здании; в общем шкафу управления ОС и т.п.)
Дополнительно может комплектоваться: - байпасной линией (отключения лампы для проведения регламентах работ без остановки ветки ОС),
- датчиком протока (автоматическое включение лампы при начале движения воды),
- дренажным насосом (для откачки воды на случай аварийного пролива),
- устройством химической промывки (для проведения регламентных работ).
Возможно изготовление резервуара под УФ установку по техническому заданию клиента.
Преимущества
- Применение в изготовлении качественных, прочных и долговечных материалов не подверженных коррозии.
- Срок службы корпуса – более 50 лет.
- Для спуска в емкость предусмотрены прочные стационарные лестницы.
- Возможность установки дополнительных опций.
- Возможность изготовления «под проект».
Сервис
Мы предлагаем комплексные решения полного цикла водоотведения «от сбора до выпуска». Так же мы предоставляем услуги по проектированию, шеф-монтажным и пусконаладочным работам.
Рекомендации по монтажу
- Монтаж оборудования должен производится на железобетонное основание. Для горизонтального корпуса дополнительно необходим ложемент высотой не менее 0,175 от диаметра оборудования.
- При установке сооружений на основание проверить вертикальность / горизонтальность.
- При высоком уровне грунтовых вод горизонтальный корпус крепить к ж/б плите с помощью металлических стяжных ремней.
- Обратную засыпку проводить послойно (200-300мм) с уплотнением трамбовками или проливом водой.
- Во время обратной засыпки емкость заполнять водой для компенсации нагрузок на стенки корпуса.
- При монтаже под проезжую часть, над оборудованием необходимо устанавливать разгрузочную ж/б плиту.
Для надежного обеззараживания стока перед сбросом в водоемы рыбохозяйственного или культурно-бытового назначения применяется специализированное оборудование для очистки сточных вод — блок ультрафиолетового обеззараживания (УФО). Он устанавливается на завершающей стадии очистки, непосредственно после комплекса очистных сооружений.
Внутри корпуса блока УФО размещены бактерицидные УФ-лампы, защищенные кварцевыми чехлами, обеспечивающими эффективное уничтожение патогенных микроорганизмов. Сам блок монтируется в прочный стеклопластиковый резервуар — как вертикальный колодец, так и горизонтальную емкость — что обеспечивает гибкость интеграции в существующие системы очистки.
Это решение идеально подходит для предприятий, требующих соответствия экологическим нормам и безопасного сброса сточных вод в природные водоемы.
Устройство и принцип работы блока УФ-обеззараживания
Оборудование для очистки сточных вод ACO представляет собой компактное подземное сооружение — цилиндрический сухой резервуар, который может монтироваться как вертикально, так и горизонтально. Внутри него размещается установка ультрафиолетового обеззараживания — ключевой элемент для надежного обеззараживания стока перед его сбросом в окружающую среду.
Как работает система?
- Подача воды: Сточная вода поступает в блок через подводящий коллектор.
- Процесс обеззараживания: Вода равномерно обтекает кварцевые чехлы, внутри которых расположены бактерицидные УФ-лампы. Под воздействием ультрафиолетового излучения с длиной волны 254 нм патогенные микроорганизмы инактивируются — это и есть основа современного обеззараживания стока.
- Сброс обработанной воды: После прохождения зоны облучения очищенная вода направляется в выходной патрубок и далее — на сброс или повторное использование.
На чем основано эффективное обеззараживание?
Эффективность оборудования для очистки сточных вод определяется дозой УФ-облучения — ключевым параметром, рассчитываемым как произведение интенсивности излучения (мВт/см²) и времени воздействия (секунды). Результат выражается в миллиджоулях на квадратный сантиметр (мДж/см²).
Чем выше доза — тем выше степень инактивации бактерий, вирусов и других патогенов. Именно этот параметр является главной характеристикой любой установки УФ-обеззараживания и гарантирует соответствие нормам санитарной безопасности и экологическим требованиям.
Рекомендации по подбору
Основными параметрами подбора установки УФО является расход и тип стока. По этим параметрам можно произвести предварительный подбор оборудования. Для более детального подбора оборудования необходимо заполнить опросный лист.
Общий вид установки
Эффективность очистки
Эффективность обеззараживания от вредоносных микроорганизмов составляет 99,9%.
* - установка проводит лишь обеззараживание стока, а не его очистку, поэтому концентрации взвешенных веществ и нефтепродуктов на входе не должны превышать допустимых параметров для сброса в водоемы рыбо-хозяйственного и культурно-бытового назначения.
Сухие установки
| Марка | Q, л/с | D, мм | dy, мм | Н1, мм | Н2, мм |
| ACO UV-1,5 (V) | 1,5 | 1200 | 110 | 1900 | 1400 |
| ACO UV-2 (V) | 2 | ||||
| ACO UV-3 (V) | 3 | 1500 | |||
| ACO UV-4 (V) | 4 | ||||
| ACO UV-5 (V) | 5 | 2100 | 1600 | ||
| ACO UV-8 (V) | 8 | 160 | |||
| ACO UV-11 (V) | 11 | 2000 | 1900 | 1400 | |
| ACO UV-13 (V) | 13 | ||||
| ACO UV-16 (V) | 16 | 200 | |||
| ACO UV-22 (V) | 22 | 2150 | 1650 | ||
| ACO UV-27 (V) | 27 | 250 | |||
| ACO UV-33(V) | 33 | ||||
| ACO UV-41 (V) | 41 | 315 | |||
| ACO UV-55 (V) | 55 | 2200 | 2200 | 1700 | |
| ACO UV-69 (V) | 69 | 400 | |||
| ACO UV-83 (V) | 83 | 3000 | |||
| ACO UV-97 (V) | 97 | ||||
| ACO UV-110 (V) | 110 | 500 | 2300 | 1800 | |
| ACO UV-138 (V) | 130 | 630 | |||
| ACO UV-166 (V) | 166 | 3400 | 630 |
Погружные установки
| Марка | Q, л/с | D, мм | dy, мм | Н1, мм | Н2, мм |
| ACO UV-3 (W) | 3 | 1200 | 110 | 1450 | 1350 |
| ACO UV-4 (W) | 4 | ||||
| ACO UV-5 (W) | 5 | 1500 | |||
| ACO UV-6 (W) | 6 | ||||
| ACO UV-7 (W) | 7 | 160 | 1550 | ||
| ACO UV-8 (W) | 8 | 1600 | |||
| ACO UV-9 (W) | 9 | ||||
| ACO UV-10 (W) | 10 | 1650 | |||
| ACO UV-13(W) | 13 | 1500 | 200 | ||
| ACO UV-15 (W) | 15 | ||||
| ACO UV-17 (W) | 17 | ||||
| ACO UV-20 (W) | 20 | ||||
| ACO UV-25 (W) | 25 | 1950 | 1650 | ||
| ACO UV-30 (W) | 30 | ||||
| ACO UV-35 (W) | 35 | ||||
| ACO UV-40 (W) | 40 | 315 | |||
| ACO UV-45 (W) | 45 | ||||
| ACO UV-50 (W) | 50 | ||||
| ACO UV-55 (W) | 55 | 1800 | 2000 | 1700 | |
| ACO UV-60 (W) | 60 | 400 | |||
| ACO UV-70 (W) | 70 | ||||
| ACO UV-80 (W) | 80 | 2000 | |||
| ACO UV-90 (W) | 90 | ||||
| ACO UV-100 (W) | 100 | ||||
| ACO UV-120 (W) | 120 | 500 |
Особенности/ дополнительные возможности
- Возможно изготовление в наземном исполнении с защитой от УФ-излучения.
- Может изготавливаться в усиленном исполнении для расположения под проезжей частью с чугунным люком,
а так же в сейсмостойком исполнении.
- Доступны варианты изготовления в горизонтальном корпусе.
- Изготовление в двух вариантах: в сухом колодце и погружная установка.
- По заказу горизонтальный корпус комплектуется металлическими стяжными ремнями.
- Широкая вариативность установки шкафа управления (в колодце с лампой; на улице, возле колодца; в близи стоящем здании; в общем шкафу управления ОС и т.п.)
Дополнительно может комплектоваться: - байпасной линией (отключения лампы для проведения регламентах работ без остановки ветки ОС),
- датчиком протока (автоматическое включение лампы при начале движения воды),
- дренажным насосом (для откачки воды на случай аварийного пролива),
- устройством химической промывки (для проведения регламентных работ).
Возможно изготовление резервуара под УФ установку по техническому заданию клиента.
Преимущества
- Применение в изготовлении качественных, прочных и долговечных материалов не подверженных коррозии.
- Срок службы корпуса – более 50 лет.
- Для спуска в емкость предусмотрены прочные стационарные лестницы.
- Возможность установки дополнительных опций.
- Возможность изготовления «под проект».
Сервис
Мы предлагаем комплексные решения полного цикла водоотведения «от сбора до выпуска». Так же мы предоставляем услуги по проектированию, шеф-монтажным и пусконаладочным работам.
Рекомендации по монтажу
- Монтаж оборудования должен производится на железобетонное основание. Для горизонтального корпуса дополнительно необходим ложемент высотой не менее 0,175 от диаметра оборудования.
- При установке сооружений на основание проверить вертикальность / горизонтальность.
- При высоком уровне грунтовых вод горизонтальный корпус крепить к ж/б плите с помощью металлических стяжных ремней.
- Обратную засыпку проводить послойно (200-300мм) с уплотнением трамбовками или проливом водой.
- Во время обратной засыпки емкость заполнять водой для компенсации нагрузок на стенки корпуса.
- При монтаже под проезжую часть, над оборудованием необходимо устанавливать разгрузочную ж/б плиту.





